17 Abr
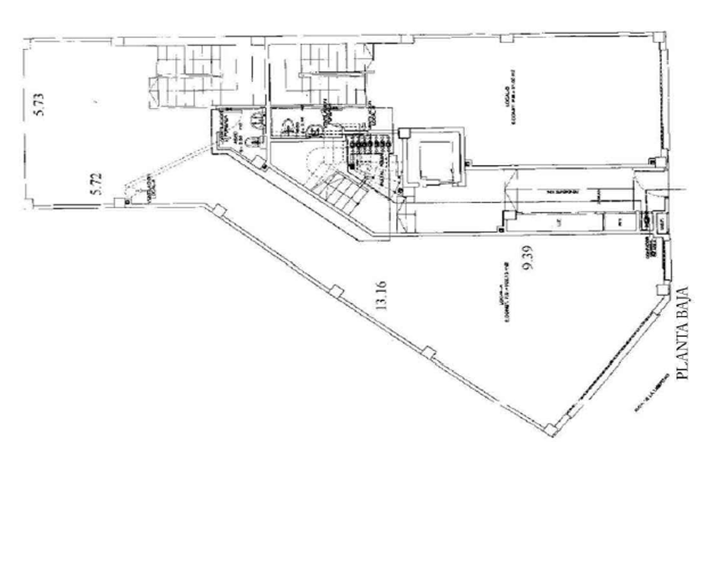
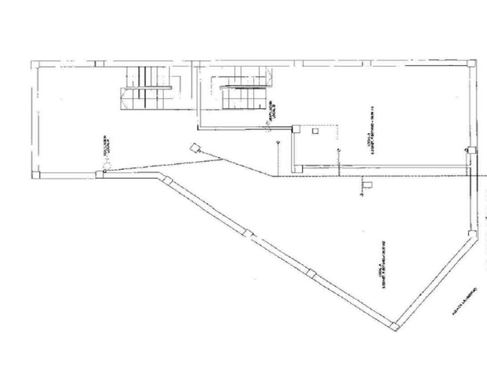
Gran oportunidad de adquirir este local comercial (formado por dos unidades registrales) situado en los bajos de un edificio residencial de 7 alturas sobre rasante situado en Elche, Alicante. El local, se divide en dos partes, una zona comercial y otra de almacenaje. Muy bien situado y comunicado.
Aprovecha las múltiples posibilidades de distribución, adecuación y reforma para configurar tu nuevo negocio en el local que te ofrecemos. Además , por su gran tránsito comercial, visibilidad desde la vía pública y cómodos accesos, lo convierten en perfecto e inigualable en la localidad.
El local se encuentra en el barrio de Carrús, en la zona sur de la ciudad. Se trata de una calle bastante larga y concurrida que cuenta con numerosos comercios y servicios, como tiendas, bares, restaurantes, supermercados, farmacias, bancos, entre otros. También hay algunos edificios residenciales en la zona.
En cuanto a transporte público, hay varias paradas de autobús que conectan el barrio con el centro de la ciudad y otros barrios cercanos. También hay una estación de tren en la zona, la estación de Carrús, que ofrece conexiones con otras ciudades de la provincia y del País.
ANTONIO PASCUAL QUILES
NO COBRAMOS COMISIÓN DE INTERMEDIACIÓN AL COMPRADORGran oportunidad de adquirir este local comercial (formado por dos unidades registrales) situado en los bajos de un edificio residencial de 7 alturas sobre rasante situado en Elche, Alicante. El local, se divide en dos partes, una zona comercial y otra de almacenaje. Muy bien situado y comunicado.
Aprovecha las múltiples posibilidades de distribución, adecuación y reforma para configurar tu nuevo negocio en el local que te ofrecemos. Además , por su gran tránsito comercial, visibilidad desde la vía pública y cómodos accesos, lo convierten en perfecto e inigualable en la localidad.
El local se encuentra en el barrio de Carrús, en la zona sur de la ciudad. Se trata de una calle bastante larga y concurrida que cuenta con numerosos comercios y servicios, como tiendas, bares, restaurantes, supermercados, farmacias, bancos, entre otros. También hay algunos edificios residenciales en la zona.
En cuanto a transporte público, hay varias paradas de autobús que conectan el barrio con el centro de la ciudad y otros barrios cercanos. También hay una estación de tren en la zona, la estación de Carrús, que ofrece conexiones con otras ciudades de la provincia y del País.
- Superficie 341 m²
Escribe tu comentario sobre el producto a través de Facebook
¿qué BANCO
tiene esta vivienda?
Rellena GRATIS el formulario para recibir información sobre el inmueble.
tiene esta vivienda?
Rellena GRATIS el formulario para recibir información sobre el inmueble.

