17 Abr
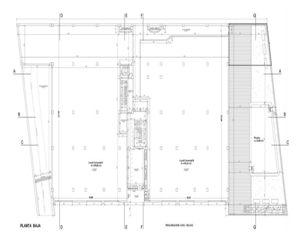
Suelo urbano sobre el que se pretendía construir un edificio de viviendas cuyas obras se paralizaron en el forjado situado a cota cero.
-Con Ref. catastral: 3784303YJ1138S0001QY.
-Edificabilidad sobre rasante 3.435 m2 y 1.159 m2 bajo rasante.
-Grado de avance estimado: 12,5%.
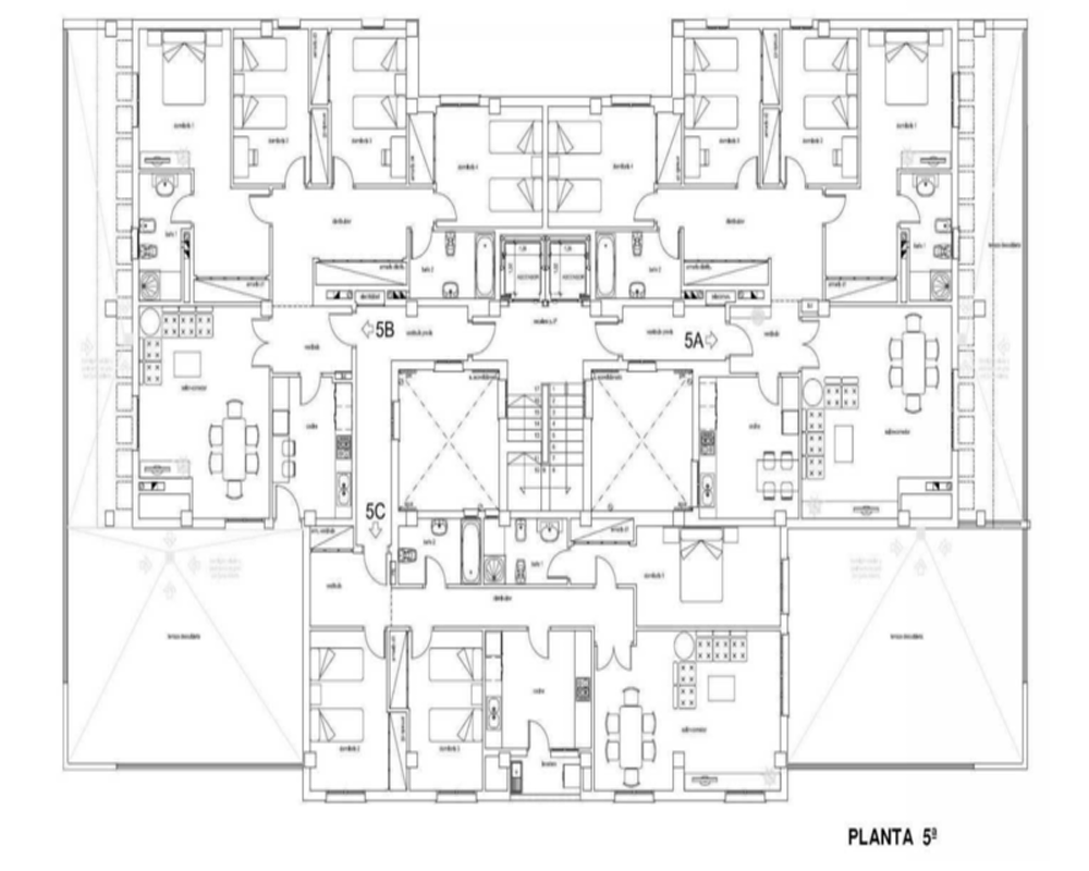
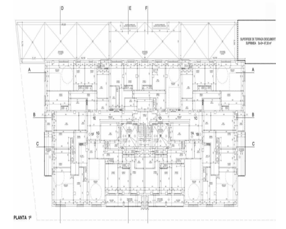
-Hipótesis: El edificio proyectado cuenta con 7 plantas sobre rasante (39 viviendas + 1 local) y 2 plantas bajo rasante (48 plazas de garaje). Previsto siete viviendas por planta entre la 1ª y la 5ª; Cuatro viviendas en la planta 6ª y el local en la planta baja.
Xátiva es una ciudad bien desarrollada que ofrece una amplia gama de servicios y comodidades. Cuenta con una buena infraestructura de transporte público, como autobuses y trenes, que facilitan la movilidad dentro y fuera de la ciudad. También cuenta con una gran variedad de tiendas, restaurantes, centros educativos, centros de atención médica y otros servicios necesarios para una vida cómoda.
La ciudad se encuentra estratégicamente ubicada entre Valencia y Alicante, lo que facilita su acceso mediante una red de carreteras bien desarrollada y servicios de transporte público eficientes, como trenes y autobuses que conectan con otras ciudades de la región y más allá.
Xátiva tiene excelentes conexiones terrestres gracias a la A-7 y la N-340, que la enlazan con Valencia y Alicante. Además, cuenta con una estación de tren de la línea C-2 de Cercanías y servicios de autobuses.
PINTOR JUAN FRANCES
NO COBRAMOS COMISIÓN DE INTERMEDIACIÓN AL COMPRADORSuelo urbano sobre el que se pretendía construir un edificio de viviendas cuyas obras se paralizaron en el forjado situado a cota cero.
-Con Ref. catastral: 3784303YJ1138S0001QY.
-Edificabilidad sobre rasante 3.435 m2 y 1.159 m2 bajo rasante.
-Grado de avance estimado: 12,5%.
-Hipótesis: El edificio proyectado cuenta con 7 plantas sobre rasante (39 viviendas + 1 local) y 2 plantas bajo rasante (48 plazas de garaje). Previsto siete viviendas por planta entre la 1ª y la 5ª; Cuatro viviendas en la planta 6ª y el local en la planta baja.
Xátiva es una ciudad bien desarrollada que ofrece una amplia gama de servicios y comodidades. Cuenta con una buena infraestructura de transporte público, como autobuses y trenes, que facilitan la movilidad dentro y fuera de la ciudad. También cuenta con una gran variedad de tiendas, restaurantes, centros educativos, centros de atención médica y otros servicios necesarios para una vida cómoda.
La ciudad se encuentra estratégicamente ubicada entre Valencia y Alicante, lo que facilita su acceso mediante una red de carreteras bien desarrollada y servicios de transporte público eficientes, como trenes y autobuses que conectan con otras ciudades de la región y más allá.
Xátiva tiene excelentes conexiones terrestres gracias a la A-7 y la N-340, que la enlazan con Valencia y Alicante. Además, cuenta con una estación de tren de la línea C-2 de Cercanías y servicios de autobuses.
- Superficie 5721 m²
Escribe tu comentario sobre el producto a través de Facebook
¿qué BANCO
tiene esta vivienda?
Rellena GRATIS el formulario para recibir información sobre el inmueble.
tiene esta vivienda?
Rellena GRATIS el formulario para recibir información sobre el inmueble.

