17 Abr
¡Oportunidad estratégica cerca de la costa!
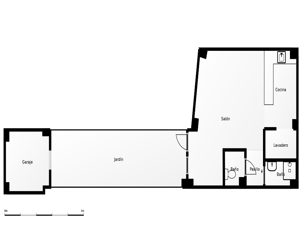
Presentamos este local comercial a reformar ubicado en la localidad de Xeraco, en la provincia de Valencia, una zona con gran atractivo tanto residencial como turístico gracias a su proximidad a la costa y su actividad comercial durante todo el año.
El local ofrece un espacio versátil con amplias posibilidades de redistribución. La zona principal puede configurarse como área de atención al público o sala de ventas, permitiendo crear un ambiente amplio y funcional donde desarrollar la actividad comercial.
En su interior es posible habilitar distintas áreas funcionales como despacho privado, zona de almacén o espacio de trabajo interno, lo que permite optimizar la operativa diaria. También dispone de área destinada a aseo o servicios, imprescindible para cualquier actividad comercial, con posibilidad de actualización durante la reforma.
El local cuenta con fachada a pie de calle, lo que aporta visibilidad y accesibilidad, factores clave para atraer clientela. La reforma permitirá adaptar el diseño interior, mejorar instalaciones y actualizar la imagen del espacio para ajustarlo a los estándares actuales de negocio. Además cuenta con un patio interior.
Ubicado en una zona urbana de Xeraco, el local se encuentra próximo a viviendas, comercios y servicios, lo que favorece el tránsito de personas y la actividad comercial. Además, la localidad cuenta con buena conexión por carretera hacia Gandía y otras poblaciones cercanas, así como proximidad a la playa de Xeraco, un punto de gran afluencia durante la temporada turística.
SAN ISIDRO
NO COBRAMOS COMISIÓN DE INTERMEDIACIÓN AL COMPRADOR¡Oportunidad estratégica cerca de la costa!
Presentamos este local comercial a reformar ubicado en la localidad de Xeraco, en la provincia de Valencia, una zona con gran atractivo tanto residencial como turístico gracias a su proximidad a la costa y su actividad comercial durante todo el año.
El local ofrece un espacio versátil con amplias posibilidades de redistribución. La zona principal puede configurarse como área de atención al público o sala de ventas, permitiendo crear un ambiente amplio y funcional donde desarrollar la actividad comercial.
En su interior es posible habilitar distintas áreas funcionales como despacho privado, zona de almacén o espacio de trabajo interno, lo que permite optimizar la operativa diaria. También dispone de área destinada a aseo o servicios, imprescindible para cualquier actividad comercial, con posibilidad de actualización durante la reforma.
El local cuenta con fachada a pie de calle, lo que aporta visibilidad y accesibilidad, factores clave para atraer clientela. La reforma permitirá adaptar el diseño interior, mejorar instalaciones y actualizar la imagen del espacio para ajustarlo a los estándares actuales de negocio. Además cuenta con un patio interior.
Ubicado en una zona urbana de Xeraco, el local se encuentra próximo a viviendas, comercios y servicios, lo que favorece el tránsito de personas y la actividad comercial. Además, la localidad cuenta con buena conexión por carretera hacia Gandía y otras poblaciones cercanas, así como proximidad a la playa de Xeraco, un punto de gran afluencia durante la temporada turística.
- Superficie 62 m²
- Baños 1
Escribe tu comentario sobre el producto a través de Facebook
¿qué BANCO
tiene esta vivienda?
Rellena GRATIS el formulario para recibir información sobre el inmueble.
tiene esta vivienda?
Rellena GRATIS el formulario para recibir información sobre el inmueble.

