19 Abr
Piso en C/ Conde de Torrefiel
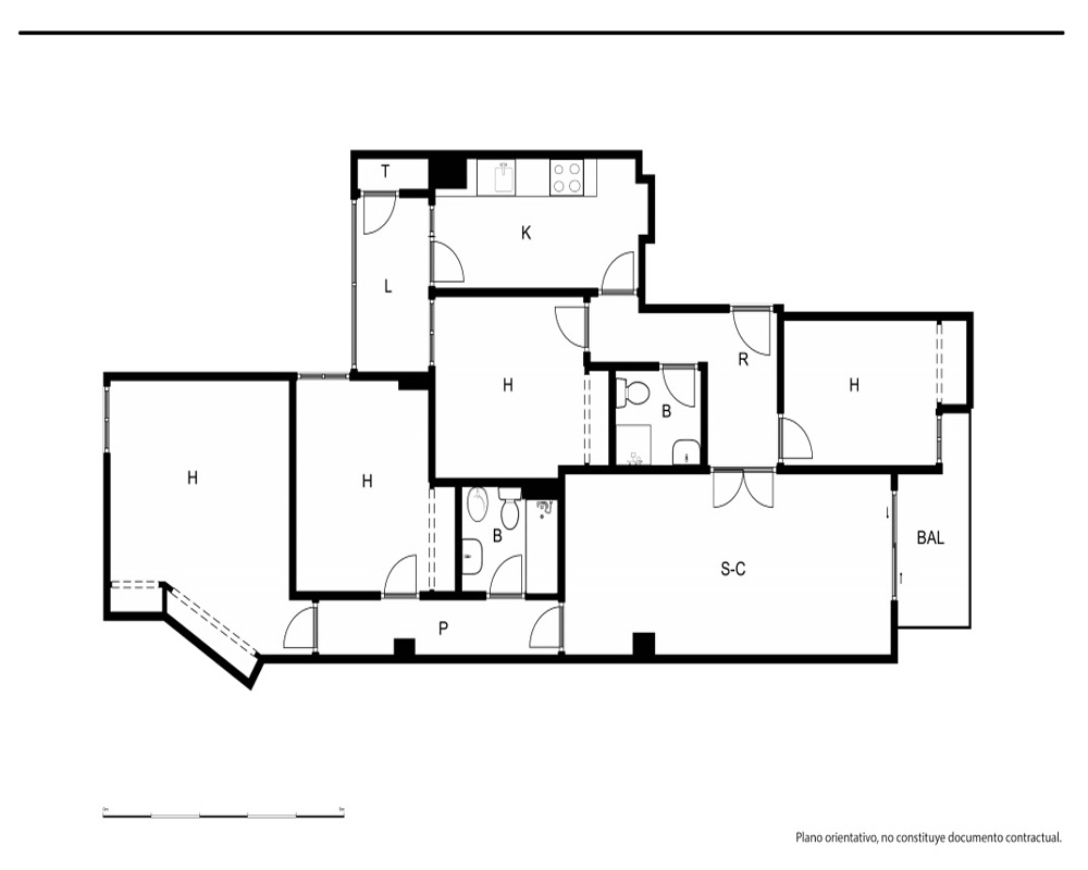
VIVIENDA ALQUILADA, IDEAL PARA INVERSORES. Piso situado en Valencia capital. Construido en 1975 el inmueble de 130 m² que se encuentra en la quinta planta de un edificio residencial, con ascensor, ubicado en el barrio Torrefiel, se distribuye de la siguiente manera: salón-comedor, cocina independiente amueblada con armarios altos y bajos, equipada con vitrocerámica, horno y campana extractora, 4 dormitorios alguno de ellos con armarios empotrados, y 2 baños. Cuenta con una plaza de garaje de fácil acceso y maniobrabilidad en la planta baja del edificio. Se localiza en una zona próxima a todo tipo de servicios como: centros educativos, comercios, restaurantes, centros médicos, etc. A menos de 15 minutos en vehículo de la Playa de la Malvarrosa y la Patacona, tiene buena comunicación tanto pública con una parada de autobús a menos de 5 minutos a pie y la parada de Tram Tossal del Rei a menos de 400 metros y como privada, a pocos minutos en coche del acceso a la V-30, por la que podrá acceder a poblaciones cercanas o al aeropuerto de Manises con facilidad. Información sobre la propiedad en alquiler: La vivienda se encuentra actualmente alquilada a precio de mercado, con inquilinos solventes que cuentan con empleo fijo y nómina, abonando la renta de manera puntual y regular. Detalles del contrato: Renta mensual actual: 777,71€ Importante: Dado que la propiedad está ocupada, no es posible realizar visitas en este momento. Para más información, no dudes en consultarnos.- Superficie 129.59 m²
- Habitaciones 4
- Baños 2
Escribe tu comentario sobre el producto a través de Facebook
¿qué BANCO
tiene esta vivienda?
Rellena GRATIS el formulario para recibir información sobre el inmueble.
tiene esta vivienda?
Rellena GRATIS el formulario para recibir información sobre el inmueble.

