17 Abr
Gran oportunidad de adquirir en propiedad este suelo urbanizable residencial en venta ubicado en Alcalá de Guadaíra.
Muy bien comunicado por carretera como la A-92, que conecta con Sevilla y otras ciudades de la región. Además, cuenta con una buena red de carreteras locales que permiten desplazarse por la zona. La ciudad está ubicada en el valle del río Guadaíra, rodeada de colinas y campos de cultivo. Además, cuenta con importantes monumentos históricos, como el Castillo de Alcalá de Guadaíra, una fortaleza medieval construida en lo alto de una colina, y la Iglesia de San Sebastián, una iglesia barroca del siglo XVIII. En términos de transporte público, Alcalá de Guadaíra cuenta con una estación de tren que ofrece conexiones con Sevilla y otras localidades cercanas. Además, cuenta con líneas de autobús que conectan con Sevilla y otras localidades de la comarca. Dispone de todos los servicios públicos o privados necesarios indispensables como pequeño comercio de proximidad, farmacias, supermercados, centro de salud, gran oferta gastronómica, instalaciones deportivas y centros educativos.
- Locales comerciales: 1ud. - 1.256,65m²
- Uso industrial: 1ud. - 8.614,19m²
- Referencia catastral: 5604901TG4450S0001FE
LOS PALILLOS CATORCE
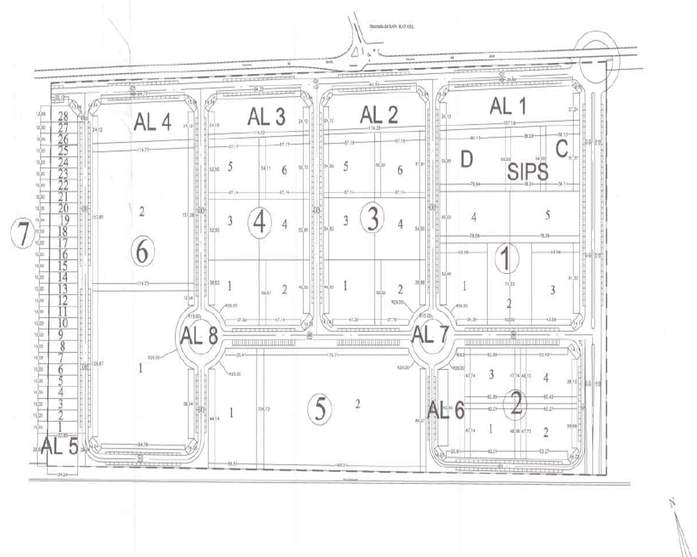
¿Buscas tu nuevo suelo urbanizable residencial? Nosotros lo tenemos.Gran oportunidad de adquirir en propiedad este suelo urbanizable residencial en venta ubicado en Alcalá de Guadaíra.
Muy bien comunicado por carretera como la A-92, que conecta con Sevilla y otras ciudades de la región. Además, cuenta con una buena red de carreteras locales que permiten desplazarse por la zona. La ciudad está ubicada en el valle del río Guadaíra, rodeada de colinas y campos de cultivo. Además, cuenta con importantes monumentos históricos, como el Castillo de Alcalá de Guadaíra, una fortaleza medieval construida en lo alto de una colina, y la Iglesia de San Sebastián, una iglesia barroca del siglo XVIII. En términos de transporte público, Alcalá de Guadaíra cuenta con una estación de tren que ofrece conexiones con Sevilla y otras localidades cercanas. Además, cuenta con líneas de autobús que conectan con Sevilla y otras localidades de la comarca. Dispone de todos los servicios públicos o privados necesarios indispensables como pequeño comercio de proximidad, farmacias, supermercados, centro de salud, gran oferta gastronómica, instalaciones deportivas y centros educativos.
- Locales comerciales: 1ud. - 1.256,65m²
- Uso industrial: 1ud. - 8.614,19m²
- Referencia catastral: 5604901TG4450S0001FE
Escribe tu comentario sobre el producto a través de Facebook
¿qué BANCO
tiene esta vivienda?
Rellena GRATIS el formulario para recibir información sobre el inmueble.
tiene esta vivienda?
Rellena GRATIS el formulario para recibir información sobre el inmueble.

