17 Abr
Excelente oportunidad de adquirir en propiedad esta casa adosada residencial con una amplia superficie ubicada en la localidad de Torre-Pacheco, provincia de Murcia.
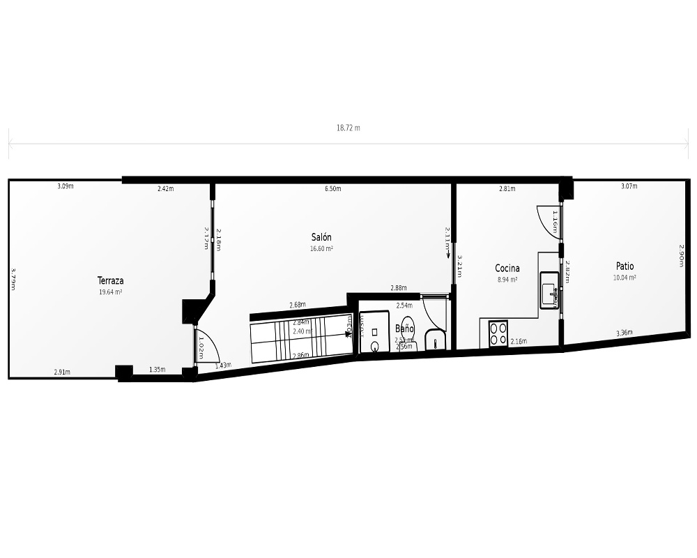
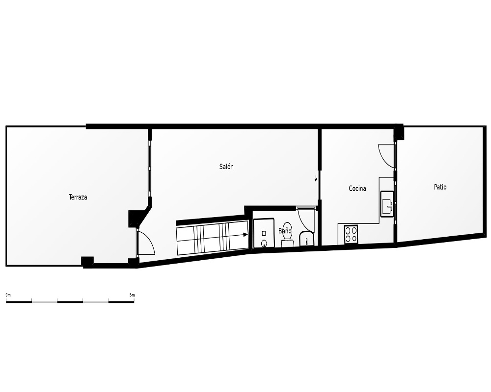
Vivienda desarrollada en dos plantas: planta baja destinada a salón y cocina con salida a patio lavadero. Planta primera destinada a dormitorios y baño, una de las habitaciones con salida a balcón y ambas con armarios empotrados. La vivienda cuenta con preinstalación de climatización por conductos y amplio porche delantero.
Estado interior en buen estado general, y con múltiples opciones y posibilidades para reformar/actualizar. Inmejorable inmueble para desarrollar tu proyecto de reforma o adecuación. Diseña el hogar de tus sueños a medida, gracias a las numerosas posibilidades de la vivienda. Situada en entorno tranquilo, pero a poca distancia del centro de la localidad dónde disponer de servicios cómo supermercados, comercios, hostelería, plazas, etc.
Torre-Pacheco es un municipio español de la Región de Murcia, enclavado en la llanura del Campo de Cartagena, es el sexto municipio de la Región en número de habitantes. El centro urbano principal se encuentra a 8 kilómetros de las playas del Mar Menor, a 14 kilómetros de Cartagena y a 41 kilómetros de Murcia.
Por lo tanto la vivienda disfruta de un entorno tranquilo y natural, pero sin renunciar a todos los servicios, equipamientos y atractivos necesarios para una gran calidad de vida. Sus accesos, comunicaciones y transportes harán que tengas todo a tu alcance.
No lo dudes, invertir en el inmueble que te ofrecemos será una apuesta segura.
TAIBILLA
NO COBRAMOS COMISIÓN DE INTERMEDIACIÓN AL COMPRADORExcelente oportunidad de adquirir en propiedad esta casa adosada residencial con una amplia superficie ubicada en la localidad de Torre-Pacheco, provincia de Murcia.
Vivienda desarrollada en dos plantas: planta baja destinada a salón y cocina con salida a patio lavadero. Planta primera destinada a dormitorios y baño, una de las habitaciones con salida a balcón y ambas con armarios empotrados. La vivienda cuenta con preinstalación de climatización por conductos y amplio porche delantero.
Estado interior en buen estado general, y con múltiples opciones y posibilidades para reformar/actualizar. Inmejorable inmueble para desarrollar tu proyecto de reforma o adecuación. Diseña el hogar de tus sueños a medida, gracias a las numerosas posibilidades de la vivienda. Situada en entorno tranquilo, pero a poca distancia del centro de la localidad dónde disponer de servicios cómo supermercados, comercios, hostelería, plazas, etc.
Torre-Pacheco es un municipio español de la Región de Murcia, enclavado en la llanura del Campo de Cartagena, es el sexto municipio de la Región en número de habitantes. El centro urbano principal se encuentra a 8 kilómetros de las playas del Mar Menor, a 14 kilómetros de Cartagena y a 41 kilómetros de Murcia.
Por lo tanto la vivienda disfruta de un entorno tranquilo y natural, pero sin renunciar a todos los servicios, equipamientos y atractivos necesarios para una gran calidad de vida. Sus accesos, comunicaciones y transportes harán que tengas todo a tu alcance.
No lo dudes, invertir en el inmueble que te ofrecemos será una apuesta segura.
- Superficie True m²
- Habitaciones True
- Baños 1
- Planta True
Escribe tu comentario sobre el producto a través de Facebook
¿qué BANCO
tiene esta vivienda?
Rellena GRATIS el formulario para recibir información sobre el inmueble.
tiene esta vivienda?
Rellena GRATIS el formulario para recibir información sobre el inmueble.

