17 Abr
Excelente oportunidad de adquirir en propiedad este local comercial en bruto ubicado en la localidad de Murcia. Dispone de buenos accesos y está bien comunicado.
Aprovecha las múltiples posibilidades de distribución, adecuación y reforma para configurar tu nuevo negocio en el local que te ofrecemos. Además , por su gran tránsito comercial, visibilidad desde la vía pública y cómodos accesos, lo convierten en perfecto e inigualable en la localidad.
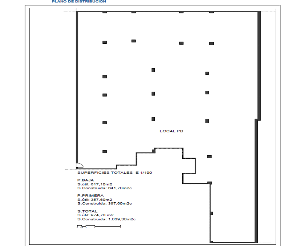
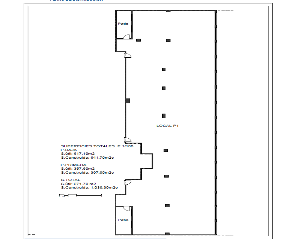
Se trata de un local comercial situado en la planta baja de un edificio residencial, que además, incluye una oficina, en la primera planta del mismo edificio con patio exterior. ambos, se encuentran en bruto.
Cuentan con una gran amplitud, por lo que se adapta fácilmente a cualquier tipo de negocio que se preste.
Además, su inmejorable ubicación lo hace aún más atractivo. Se encuentra en una zona consolidada de la ciudad, rodeada de viviendas donde poder tener afluencia y ser más sencillo la captación de clientes potenciales.
Las conexiones con el resto de la localidad pueden considerarse medias dada su situación proxima a una avenida principal.
Las conexiones con el resto de las localidades del entorno pueden considerarse medias dada la proximidad de la RM-300 que las conecta.
Murcia se encuentra en una región con una belleza natural impresionante, la costa mediterránea y el Mar Menor. Esto brinda oportunidades para actividades al aire libre como senderismo, ciclismo y deportes acuáticos.
Por lo tanto, el local comercial tiene cercanos todos los servicios, equipamientos y atractivos necesarios para una gran afluencia de clientes. Empieza ya tu idea de emprendimiento.
No lo dudes, invertir en el local que te ofrecemos será una apuesta segura.
MAYOR
NO COBRAMOS COMISIÓN DE INTERMEDIACIÓN AL COMPRADORExcelente oportunidad de adquirir en propiedad este local comercial en bruto ubicado en la localidad de Murcia. Dispone de buenos accesos y está bien comunicado.
Aprovecha las múltiples posibilidades de distribución, adecuación y reforma para configurar tu nuevo negocio en el local que te ofrecemos. Además , por su gran tránsito comercial, visibilidad desde la vía pública y cómodos accesos, lo convierten en perfecto e inigualable en la localidad.
Se trata de un local comercial situado en la planta baja de un edificio residencial, que además, incluye una oficina, en la primera planta del mismo edificio con patio exterior. ambos, se encuentran en bruto.
Cuentan con una gran amplitud, por lo que se adapta fácilmente a cualquier tipo de negocio que se preste.
Además, su inmejorable ubicación lo hace aún más atractivo. Se encuentra en una zona consolidada de la ciudad, rodeada de viviendas donde poder tener afluencia y ser más sencillo la captación de clientes potenciales.
Las conexiones con el resto de la localidad pueden considerarse medias dada su situación proxima a una avenida principal.
Las conexiones con el resto de las localidades del entorno pueden considerarse medias dada la proximidad de la RM-300 que las conecta.
Murcia se encuentra en una región con una belleza natural impresionante, la costa mediterránea y el Mar Menor. Esto brinda oportunidades para actividades al aire libre como senderismo, ciclismo y deportes acuáticos.
Por lo tanto, el local comercial tiene cercanos todos los servicios, equipamientos y atractivos necesarios para una gran afluencia de clientes. Empieza ya tu idea de emprendimiento.
No lo dudes, invertir en el local que te ofrecemos será una apuesta segura.
- Superficie 1039 m²
Escribe tu comentario sobre el producto a través de Facebook
¿qué BANCO
tiene esta vivienda?
Rellena GRATIS el formulario para recibir información sobre el inmueble.
tiene esta vivienda?
Rellena GRATIS el formulario para recibir información sobre el inmueble.

