17 Abr
¡Un proyecto con alma para transformar en hogar o inversión!
Esta vivienda a reformar totalmente se convierte en el lienzo ideal para diseñar desde cero un espacio funcional, actual y adaptado a las nuevas necesidades residenciales o de inversión.
Con una superficie generosa y distribución flexible, esta propiedad ofrece la posibilidad de crear una vivienda luminosa y acogedora, con estancias amplias y bien conectadas. Perfecta para familias que desean construir su hogar con carácter propio, o para inversores que buscan rentabilizar mediante alquiler o reventa en una localidad con demanda sostenida y buenas conexiones.
Ubicada en una zona tranquila y consolidada, la vivienda se encuentra a pocos pasos de servicios esenciales como colegios, supermercados, farmacias, centros médicos y zonas verdes. Además, Bellpuig dispone de una excelente red de transporte gracias a su estación de tren y su proximidad a la autovía A-2, que conecta con Lleida capital en menos de 30 minutos.
Bellpuig es una localidad que combina la calma de un entorno rural con la comodidad de tener todo a mano. Su patrimonio histórico, su entorno natural y su ambiente familiar la convierten en un lugar ideal tanto para residir como para invertir. Es, además, una zona con proyección urbanística y alta calidad de vida.
Esta vivienda, al estar completamente para reformar, ofrece una oportunidad única de revalorización a través de un proyecto de rehabilitación integral, aportando tu propio estilo, materiales y distribución.
¡Imagina, reforma y crea!
Preixana
NO COBRAMOS COMISIÓN DE INTERMEDIACIÓN AL COMPRADOR¡Un proyecto con alma para transformar en hogar o inversión!
Esta vivienda a reformar totalmente se convierte en el lienzo ideal para diseñar desde cero un espacio funcional, actual y adaptado a las nuevas necesidades residenciales o de inversión.
Con una superficie generosa y distribución flexible, esta propiedad ofrece la posibilidad de crear una vivienda luminosa y acogedora, con estancias amplias y bien conectadas. Perfecta para familias que desean construir su hogar con carácter propio, o para inversores que buscan rentabilizar mediante alquiler o reventa en una localidad con demanda sostenida y buenas conexiones.
Ubicada en una zona tranquila y consolidada, la vivienda se encuentra a pocos pasos de servicios esenciales como colegios, supermercados, farmacias, centros médicos y zonas verdes. Además, Bellpuig dispone de una excelente red de transporte gracias a su estación de tren y su proximidad a la autovía A-2, que conecta con Lleida capital en menos de 30 minutos.
Bellpuig es una localidad que combina la calma de un entorno rural con la comodidad de tener todo a mano. Su patrimonio histórico, su entorno natural y su ambiente familiar la convierten en un lugar ideal tanto para residir como para invertir. Es, además, una zona con proyección urbanística y alta calidad de vida.
Esta vivienda, al estar completamente para reformar, ofrece una oportunidad única de revalorización a través de un proyecto de rehabilitación integral, aportando tu propio estilo, materiales y distribución.
¡Imagina, reforma y crea!
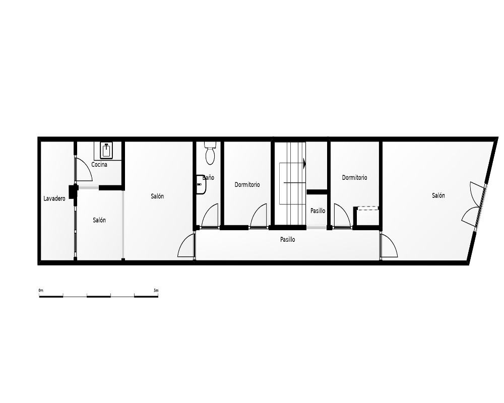
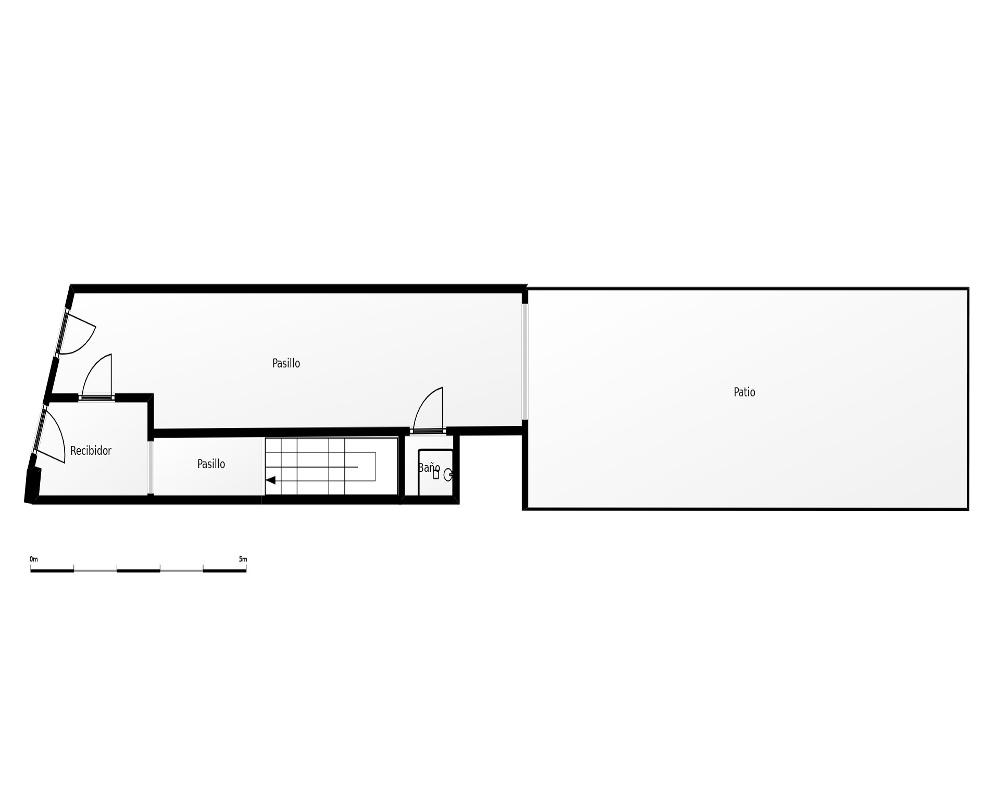
- Superficie 144 m²
- Habitaciones 3
- Baños 2
Escribe tu comentario sobre el producto a través de Facebook
¿qué BANCO
tiene esta vivienda?
Rellena GRATIS el formulario para recibir información sobre el inmueble.
tiene esta vivienda?
Rellena GRATIS el formulario para recibir información sobre el inmueble.

