17 Abr
Excelente oportunidad de adquirir esta vivienda en propiedad con ascensor ubicada en Viladecans (Barcelona).
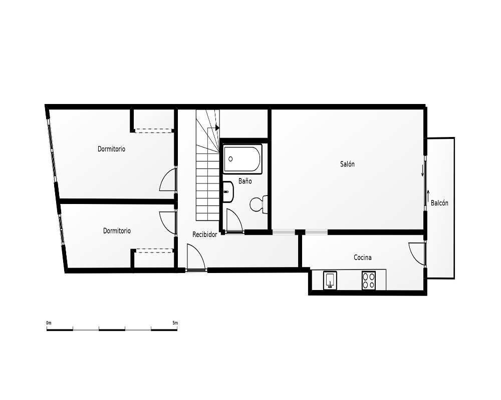
Disponemos de este inmueble en edificio residencial que puedes adquirir en propiedad, muy bien distribuido en dos plantas, primera planta zona de día con un balcón al exterior y dos dormitorios, con mucha luz gracias a sus grande ventanales y su orientación, en la segunda planta zona de noche con los dormitorios con armarios empotrados con gran capacidad de almacenaje y una amplia terraza ofreciendo todo lo que necesitas para una vida cómoda y moderna. con paredes lisas que aportan una sensación de amplitud y orden, ideal para espacios contemporáneos que combinan perfectamente con cualquier estilo de mobiliario o decoración, dispone de carpintería exterior de aluminio con acristalamiento sencillo con persianas enrollables pensadas para ofrecer máxima protección, durabilidad y eficiencia energética en cualquier época del año, carpintería interior de madera principalmente.
En una zona inmejorable muy bien comunicada por carretera, lo que facilita los desplazamientos a distintos puntos de la región o del país. Situado en una zona residencial tranquila, este piso disfruta de una ubicación estratégica. Dispone de todos los servicios públicos o privados necesarios como pequeño comercio de proximidad, supermercados y gran oferta gastronómica.
Mercadal
NO COBRAMOS COMISIÓN DE INTERMEDIACIÓN AL COMPRADORExcelente oportunidad de adquirir esta vivienda en propiedad con ascensor ubicada en Viladecans (Barcelona).
Disponemos de este inmueble en edificio residencial que puedes adquirir en propiedad, muy bien distribuido en dos plantas, primera planta zona de día con un balcón al exterior y dos dormitorios, con mucha luz gracias a sus grande ventanales y su orientación, en la segunda planta zona de noche con los dormitorios con armarios empotrados con gran capacidad de almacenaje y una amplia terraza ofreciendo todo lo que necesitas para una vida cómoda y moderna. con paredes lisas que aportan una sensación de amplitud y orden, ideal para espacios contemporáneos que combinan perfectamente con cualquier estilo de mobiliario o decoración, dispone de carpintería exterior de aluminio con acristalamiento sencillo con persianas enrollables pensadas para ofrecer máxima protección, durabilidad y eficiencia energética en cualquier época del año, carpintería interior de madera principalmente.
En una zona inmejorable muy bien comunicada por carretera, lo que facilita los desplazamientos a distintos puntos de la región o del país. Situado en una zona residencial tranquila, este piso disfruta de una ubicación estratégica. Dispone de todos los servicios públicos o privados necesarios como pequeño comercio de proximidad, supermercados y gran oferta gastronómica.
- Superficie 68 m²
- Habitaciones True
- Baños 2
- Eficiencia E. True
Eficiencia Energética
Certificación energética clase True
Escribe tu comentario sobre el producto a través de Facebook
¿qué BANCO
tiene esta vivienda?
Rellena GRATIS el formulario para recibir información sobre el inmueble.
tiene esta vivienda?
Rellena GRATIS el formulario para recibir información sobre el inmueble.

