17 Abr
¡Comodidad, funcionalidad y ubicación ideal para tu día a día!
En exclusiva te presentamos este acogedor piso en un edificio residencial con ascensor, que destaca por su excelente distribución y su ubicación privilegiada en una de las localidades más importantes y con mayor proyección, ubicado en la localidad Balaguer de la provincia de Lleida.
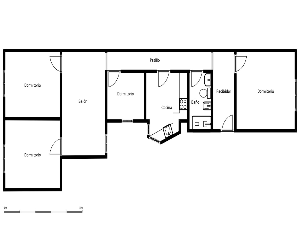
La vivienda se distribuye en amplios dormitorios, baño completo, una cocina independiente con salida directa a un patio privado con lavadero, y un amplio y luminoso salón-comedor que actúa como eje central del hogar. Las estancias, funcionales y bien proporcionadas, permiten crear ambientes cálidos y personales para disfrutar del día a día con tranquilidad. El patio privado añade un espacio exterior muy útil y versátil, ideal como zona de lavado, almacenaje o pequeño jardín urbano.
Situado en el corazón de Balaguer, este piso se encuentra a escasa distancia de supermercados, colegios, parques, centros de salud y comercios de proximidad, lo que garantiza un entorno práctico y cómodo para el ritmo cotidiano. La conexión con transporte público y vías principales permite un fácil acceso tanto al centro de la localidad como a Lleida capital y otras zonas de interés.
Balaguer combina historia y modernidad, tradición y desarrollo, siendo un enclave que ofrece tranquilidad sin renunciar a servicios completos. Vivir aquí es disfrutar de una ciudad acogedora con alma propia, perfecta para quienes buscan una vivienda práctica, bien conectada y con espacios para disfrutar en familia.
Jaume Balmes
NO COBRAMOS COMISIÓN DE INTERMEDIACIÓN AL COMPRADOR¡Comodidad, funcionalidad y ubicación ideal para tu día a día!
En exclusiva te presentamos este acogedor piso en un edificio residencial con ascensor, que destaca por su excelente distribución y su ubicación privilegiada en una de las localidades más importantes y con mayor proyección, ubicado en la localidad Balaguer de la provincia de Lleida.
La vivienda se distribuye en amplios dormitorios, baño completo, una cocina independiente con salida directa a un patio privado con lavadero, y un amplio y luminoso salón-comedor que actúa como eje central del hogar. Las estancias, funcionales y bien proporcionadas, permiten crear ambientes cálidos y personales para disfrutar del día a día con tranquilidad. El patio privado añade un espacio exterior muy útil y versátil, ideal como zona de lavado, almacenaje o pequeño jardín urbano.
Situado en el corazón de Balaguer, este piso se encuentra a escasa distancia de supermercados, colegios, parques, centros de salud y comercios de proximidad, lo que garantiza un entorno práctico y cómodo para el ritmo cotidiano. La conexión con transporte público y vías principales permite un fácil acceso tanto al centro de la localidad como a Lleida capital y otras zonas de interés.
Balaguer combina historia y modernidad, tradición y desarrollo, siendo un enclave que ofrece tranquilidad sin renunciar a servicios completos. Vivir aquí es disfrutar de una ciudad acogedora con alma propia, perfecta para quienes buscan una vivienda práctica, bien conectada y con espacios para disfrutar en familia.
- Superficie 107 m²
- Habitaciones 2
- Baños 1
- Eficiencia E. True
Eficiencia Energética
Certificación energética clase True
Escribe tu comentario sobre el producto a través de Facebook
¿qué BANCO
tiene esta vivienda?
Rellena GRATIS el formulario para recibir información sobre el inmueble.
tiene esta vivienda?
Rellena GRATIS el formulario para recibir información sobre el inmueble.

