10 Abr
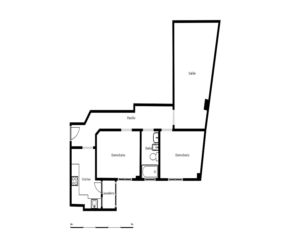
Les ofrecemos en exclusiva este piso en edificio residencial con ascensor a reformar con la posibilidad de convertirlo en el piso que siempre has querido y poder adquirirlo en propiedad, con una superficie de 86m² muy bien distribuido en 2 dormitorios, uno de ellos con armarios empotrados, 1 baño, un amplio y luminoso salón-comedor y una cocina independiente con acceso a un lavadero, ubicado en la localidad de Valdefresno, provincia de León.
Este piso a reformar en la tranquila y encantadora localidad se trata de una oportunidad única para quienes buscan un proyecto de reforma con el objetivo de crear un espacio personalizado y a su medida, o bien para quienes desean invertir en una zona con potencial de crecimiento.
El piso forma parte de un edificio en buen estado, ubicado en una zona tranquila y rodeada de naturaleza. La comunidad de vecinos es tranquila, lo que asegura un ambiente de paz y confort.
Valdefresno es una localidad que combina la tranquilidad de la vida rural con la proximidad a León, lo que la convierte en un lugar ideal para aquellos que buscan paz sin alejarse de los servicios y comodidades de la ciudad. A tan solo 15 minutos en coche de la ciudad de León, podrás disfrutar de un entorno natural privilegiado, con rutas de senderismo, paisajes rurales y aire puro.
No dudes en ponerte en contacto con nosotros. Visita sin compromiso. Más información rellenando el formulario de contacto o por teléfono. Estaremos encantados de atenderte.
General-Vd
NO COBRAMOS COMISIÓN DE INTERMEDIACIÓN AL COMPRADORLes ofrecemos en exclusiva este piso en edificio residencial con ascensor a reformar con la posibilidad de convertirlo en el piso que siempre has querido y poder adquirirlo en propiedad, con una superficie de 86m² muy bien distribuido en 2 dormitorios, uno de ellos con armarios empotrados, 1 baño, un amplio y luminoso salón-comedor y una cocina independiente con acceso a un lavadero, ubicado en la localidad de Valdefresno, provincia de León.
Este piso a reformar en la tranquila y encantadora localidad se trata de una oportunidad única para quienes buscan un proyecto de reforma con el objetivo de crear un espacio personalizado y a su medida, o bien para quienes desean invertir en una zona con potencial de crecimiento.
El piso forma parte de un edificio en buen estado, ubicado en una zona tranquila y rodeada de naturaleza. La comunidad de vecinos es tranquila, lo que asegura un ambiente de paz y confort.
Valdefresno es una localidad que combina la tranquilidad de la vida rural con la proximidad a León, lo que la convierte en un lugar ideal para aquellos que buscan paz sin alejarse de los servicios y comodidades de la ciudad. A tan solo 15 minutos en coche de la ciudad de León, podrás disfrutar de un entorno natural privilegiado, con rutas de senderismo, paisajes rurales y aire puro.
No dudes en ponerte en contacto con nosotros. Visita sin compromiso. Más información rellenando el formulario de contacto o por teléfono. Estaremos encantados de atenderte.
- Superficie 86 m²
- Habitaciones 2
- Baños 1
- Eficiencia E. True
Eficiencia Energética
Certificación energética clase True
Escribe tu comentario sobre el producto a través de Facebook
¿qué BANCO
tiene esta vivienda?
Rellena GRATIS el formulario para recibir información sobre el inmueble.
tiene esta vivienda?
Rellena GRATIS el formulario para recibir información sobre el inmueble.

