29 May
¡Luminosidad, comodidad y bienestar en una localidad dinámica!
Este piso ubicado en la localidad de Elgoibar, en la provincia de Guipúzcoa, representa una excelente oportunidad para quienes buscan un hogar luminoso, funcional y bien situado en un entorno verde, tranquilo y con todos los servicios a pocos minutos.
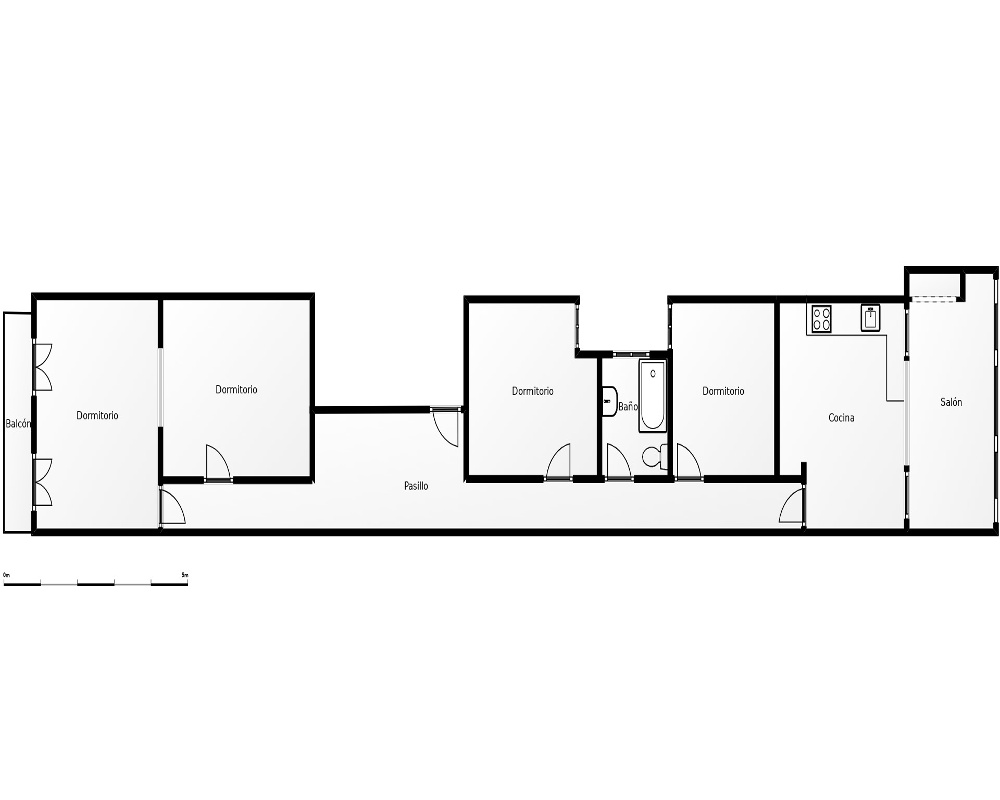
El piso dispone de una zona de día amplia y acogedora, donde el salón-comedor se convierte en el espacio protagonista del hogar con acceso a un balcón. Sus ventanales permiten que la luz natural ilumine la estancia durante gran parte del día, generando un ambiente cálido y agradable, perfecto para disfrutar de momentos de descanso, lectura o reuniones sociales, la cocina abierta y con ventilación exterior, aporta funcionalidad y comodidad al día a día.
En la zona de descanso, varias estancias se distribuyen de forma equilibrada, proporcionando espacios versátiles que pueden destinarse a dormitorios. Cada estancia transmite tranquilidad y privacidad, creando un entorno ideal para desconectar del ritmo diario o trabajar desde casa en un ambiente cómodo y silencioso; además cuenta también con un baño completo.
La ubicación en Elgoibar es uno de los grandes atractivos de esta propiedad. El municipio cuenta con una amplia oferta de servicios como supermercados, comercios locales, centros educativos, instalaciones deportivas, zonas verdes, centros de salud y transporte público. Además, su situación estratégica entre San Sebastián y Bilbao, junto con su excelente conexión por carretera y tren, ofrece una movilidad ágil y cómoda.
Nuestra Señora del Rosario
NO COBRAMOS COMISIÓN DE INTERMEDIACIÓN AL COMPRADOR¡Luminosidad, comodidad y bienestar en una localidad dinámica!
Este piso ubicado en la localidad de Elgoibar, en la provincia de Guipúzcoa, representa una excelente oportunidad para quienes buscan un hogar luminoso, funcional y bien situado en un entorno verde, tranquilo y con todos los servicios a pocos minutos.
El piso dispone de una zona de día amplia y acogedora, donde el salón-comedor se convierte en el espacio protagonista del hogar con acceso a un balcón. Sus ventanales permiten que la luz natural ilumine la estancia durante gran parte del día, generando un ambiente cálido y agradable, perfecto para disfrutar de momentos de descanso, lectura o reuniones sociales, la cocina abierta y con ventilación exterior, aporta funcionalidad y comodidad al día a día.
En la zona de descanso, varias estancias se distribuyen de forma equilibrada, proporcionando espacios versátiles que pueden destinarse a dormitorios. Cada estancia transmite tranquilidad y privacidad, creando un entorno ideal para desconectar del ritmo diario o trabajar desde casa en un ambiente cómodo y silencioso; además cuenta también con un baño completo.
La ubicación en Elgoibar es uno de los grandes atractivos de esta propiedad. El municipio cuenta con una amplia oferta de servicios como supermercados, comercios locales, centros educativos, instalaciones deportivas, zonas verdes, centros de salud y transporte público. Además, su situación estratégica entre San Sebastián y Bilbao, junto con su excelente conexión por carretera y tren, ofrece una movilidad ágil y cómoda.
- Superficie True m²
- Habitaciones 4
- Baños 2
Escribe tu comentario sobre el producto a través de Facebook
¿qué BANCO
tiene esta vivienda?
Rellena GRATIS el formulario para recibir información sobre el inmueble.
tiene esta vivienda?
Rellena GRATIS el formulario para recibir información sobre el inmueble.

