17 Abr
¡No pierdas la oportunidad de adquirir esta propiedad con una ubicación inmejorable! Esta impresionante vivienda en estado de construcción paralizada se sitúa en una zona consolidada y muy codiciada de la ciudad.
La propiedad se encuentra en la Ronda Poblat Iberic, en Lloret de Mar (Girona), una ubicación privilegiada que cuenta con excelentes accesos y comunicaciones a través de la C-63, lo que facilita el transporte y la movilidad. Además, su proximidad al Mirador d'en Juannan es una ventaja adicional que no se puede ignorar.
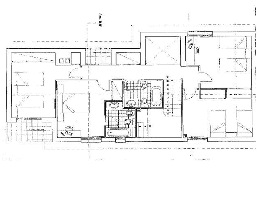
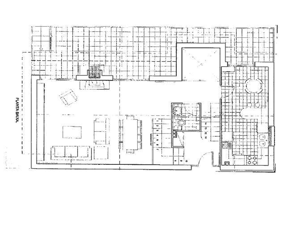
La vivienda en construcción paralizada cuenta con una superficie de 271,65m² y está esperando a que alguien la convierta en su hogar ideal. Con una inversión en la finalización de la construcción, podrás crear la casa de tus sueños en una ubicación inmejorable. La obra, se encuentra en avanzado estado, rondando el 70% para su finalización.
Lloret de Mar es un municipio turístico situado en la Costa Brava, y es uno de los destinos turísticos más importantes de España. La ciudad cuenta con una amplia variedad de tiendas, restaurantes, bares y discotecas, lo que la convierte en un lugar ideal para vivir, trabajar y disfrutar del ocio. Además, Lloret de Mar cuenta con una gran oferta turística, con playas de arena blanca y aguas cristalinas que atraen a turistas de todo el mundo.
¿Quieres más información de este inmueble?
No dudes en ponerte en contacto con nosotros. Visita sin compromiso, sin comisiones de intermediación. Más información rellenando el formulario de contacto o por teléfono. Estaremos encantados de atenderte.
POBLAT IBERIC
NO COBRAMOS COMISIÓN DE INTERMEDIACIÓN AL COMPRADOR¡No pierdas la oportunidad de adquirir esta propiedad con una ubicación inmejorable! Esta impresionante vivienda en estado de construcción paralizada se sitúa en una zona consolidada y muy codiciada de la ciudad.
La propiedad se encuentra en la Ronda Poblat Iberic, en Lloret de Mar (Girona), una ubicación privilegiada que cuenta con excelentes accesos y comunicaciones a través de la C-63, lo que facilita el transporte y la movilidad. Además, su proximidad al Mirador d'en Juannan es una ventaja adicional que no se puede ignorar.
La vivienda en construcción paralizada cuenta con una superficie de 271,65m² y está esperando a que alguien la convierta en su hogar ideal. Con una inversión en la finalización de la construcción, podrás crear la casa de tus sueños en una ubicación inmejorable. La obra, se encuentra en avanzado estado, rondando el 70% para su finalización.
Lloret de Mar es un municipio turístico situado en la Costa Brava, y es uno de los destinos turísticos más importantes de España. La ciudad cuenta con una amplia variedad de tiendas, restaurantes, bares y discotecas, lo que la convierte en un lugar ideal para vivir, trabajar y disfrutar del ocio. Además, Lloret de Mar cuenta con una gran oferta turística, con playas de arena blanca y aguas cristalinas que atraen a turistas de todo el mundo.
¿Quieres más información de este inmueble?
No dudes en ponerte en contacto con nosotros. Visita sin compromiso, sin comisiones de intermediación. Más información rellenando el formulario de contacto o por teléfono. Estaremos encantados de atenderte.
- Superficie 272 m²
Escribe tu comentario sobre el producto a través de Facebook
¿qué BANCO
tiene esta vivienda?
Rellena GRATIS el formulario para recibir información sobre el inmueble.
tiene esta vivienda?
Rellena GRATIS el formulario para recibir información sobre el inmueble.

