17 Abr
Vivienda a reformar en Girona: ¡Una oportunidad única para diseñar tu hogar ideal!
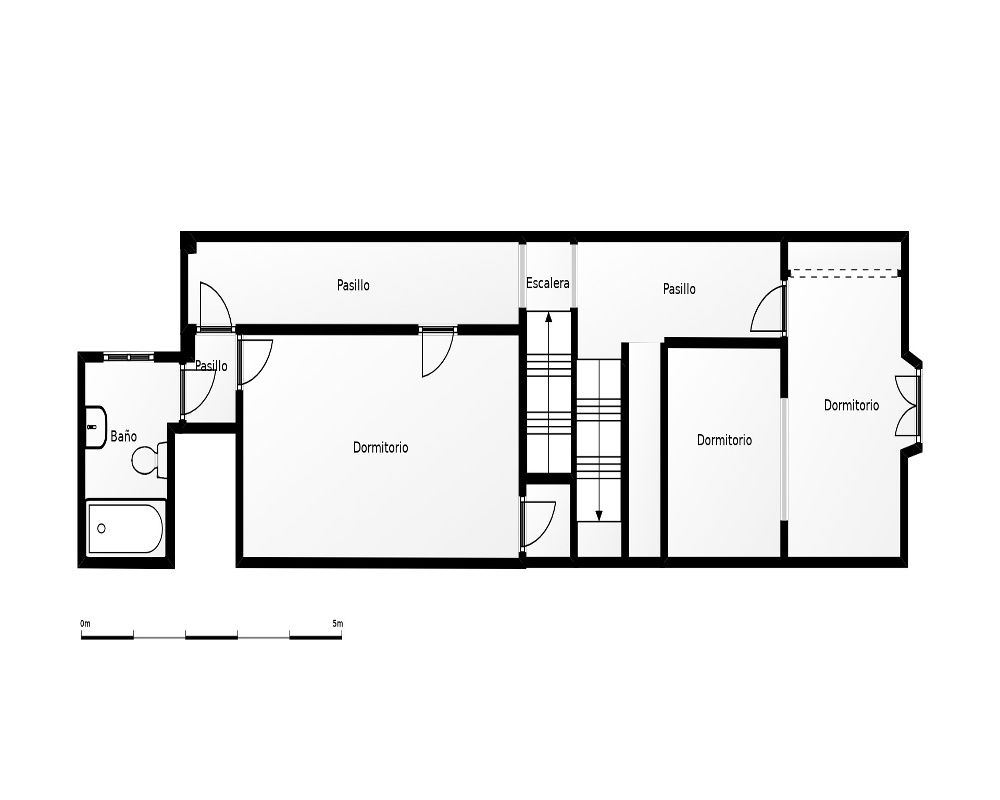
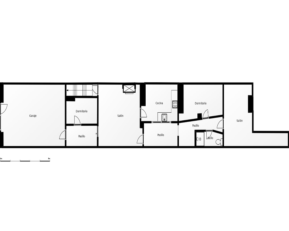
Presentamos esta vivienda que consta de tres plantas a reformar, situada en la encantadora ciudad de Girona, conocida por su impresionante patrimonio histórico, su calidad de vida y su ubicación estratégica cerca de la Costa Brava y de los Pirineos.
Esta vivienda es la oportunidad perfecta para quienes buscan personalizar y crear un hogar adaptado a sus gustos y necesidades.
La vivienda ofrece un lienzo en blanco para redistribuir espacios según tus preferencias. Ideal para diseñar un hogar único y funcional.
Garantiza una buena entrada de luz natural en sus diferentes ambientes, creando un espacio lleno de posibilidades.
Podrás transformar este inmueble en una vivienda moderna, clásica o rústica, adaptándola completamente a tu estilo de vida. Desde la cocina y los baños hasta los acabados, todo está preparado para que dejes volar tu creatividad.
Situada en un barrio tranquilo y con acceso a todos los servicios, la propiedad está a pocos minutos del centro histórico de Girona, donde podrás disfrutar de su oferta cultural, gastronómica y comercial. Además, cuenta con excelente conexión de transporte público y fácil acceso a carreteras principales.
Pont Major
NO COBRAMOS COMISIÓN DE INTERMEDIACIÓN AL COMPRADORVivienda a reformar en Girona: ¡Una oportunidad única para diseñar tu hogar ideal!
Presentamos esta vivienda que consta de tres plantas a reformar, situada en la encantadora ciudad de Girona, conocida por su impresionante patrimonio histórico, su calidad de vida y su ubicación estratégica cerca de la Costa Brava y de los Pirineos.
Esta vivienda es la oportunidad perfecta para quienes buscan personalizar y crear un hogar adaptado a sus gustos y necesidades.
La vivienda ofrece un lienzo en blanco para redistribuir espacios según tus preferencias. Ideal para diseñar un hogar único y funcional.
Garantiza una buena entrada de luz natural en sus diferentes ambientes, creando un espacio lleno de posibilidades.
Podrás transformar este inmueble en una vivienda moderna, clásica o rústica, adaptándola completamente a tu estilo de vida. Desde la cocina y los baños hasta los acabados, todo está preparado para que dejes volar tu creatividad.
Situada en un barrio tranquilo y con acceso a todos los servicios, la propiedad está a pocos minutos del centro histórico de Girona, donde podrás disfrutar de su oferta cultural, gastronómica y comercial. Además, cuenta con excelente conexión de transporte público y fácil acceso a carreteras principales.
- Superficie 350 m²
- Habitaciones 3
- Baños 2
Escribe tu comentario sobre el producto a través de Facebook
¿qué BANCO
tiene esta vivienda?
Rellena GRATIS el formulario para recibir información sobre el inmueble.
tiene esta vivienda?
Rellena GRATIS el formulario para recibir información sobre el inmueble.

