Favorito
Otros de 301 m² en Caldes de Malavella
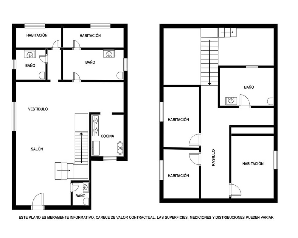
301 m²6 hab4 baños894 €/m²
Ref: 955924
Llevant (Urb. Llac Del Cigne)
Inmueble de 301 m² con 6 habitaciones y 4 baños ubicado en Llevant (Urb. Llac Del Cigne), Caldes de Malavella (Girona).
- Superficie 301 m²
- Habitaciones 6
- Baños 4
269.000€
Caldes de Malavella, Girona
10 Abr
OBRA PARADA
Excelente oportunidad para adquirir esta vivienda en construcción, luminosa y acogedora, con una distribución óptima que incorpora amplios ventanales para una entrada generosa de luz natural, creando una sensación de amplitud y calidez en cada uno de sus espacios y habitaciones, ubicada en la encantadora localidad de Malavella, en la provincia de Girona.
Esta casa está distribuida en 6 dormitorios y 4 baños.
La Urbanización ofrece un entorno residencial tranquilo y rodeado de naturaleza. Su proximidad al núcleo urbano y a la estación de tren facilita el acceso a servicios y conexiones de transporte. La zona cuenta con atractivos naturales y culturales cercanos, ideales para el ocio y la recreación. Estas características la hacen un lugar idóneo para quienes buscan calidad de vida en un entorno apacible y bien comunicado.
Malavella cuenta con centros de salud y farmacias que cubren las necesidades médicas básicas. Su oferta educativa incluye colegios e institutos para distintas etapas formativas. El comercio es variado, con supermercados, tiendas y negocios locales. Destaca por su entorno tranquilo y calidad de vida. Sus conexiones terrestres incluyen carreteras y estación de tren, facilitando el acceso a Girona y otras localidades cercanas.
Llevant (Urb. Llac Del Cigne)
NO COBRAMOS COMISIÓN DE INTERMEDIACIÓN AL COMPRADOROBRA PARADA
Excelente oportunidad para adquirir esta vivienda en construcción, luminosa y acogedora, con una distribución óptima que incorpora amplios ventanales para una entrada generosa de luz natural, creando una sensación de amplitud y calidez en cada uno de sus espacios y habitaciones, ubicada en la encantadora localidad de Malavella, en la provincia de Girona.
Esta casa está distribuida en 6 dormitorios y 4 baños.
La Urbanización ofrece un entorno residencial tranquilo y rodeado de naturaleza. Su proximidad al núcleo urbano y a la estación de tren facilita el acceso a servicios y conexiones de transporte. La zona cuenta con atractivos naturales y culturales cercanos, ideales para el ocio y la recreación. Estas características la hacen un lugar idóneo para quienes buscan calidad de vida en un entorno apacible y bien comunicado.
Malavella cuenta con centros de salud y farmacias que cubren las necesidades médicas básicas. Su oferta educativa incluye colegios e institutos para distintas etapas formativas. El comercio es variado, con supermercados, tiendas y negocios locales. Destaca por su entorno tranquilo y calidad de vida. Sus conexiones terrestres incluyen carreteras y estación de tren, facilitando el acceso a Girona y otras localidades cercanas.
- Superficie 301 m²
- Habitaciones 6
- Baños 4
Escribe tu comentario sobre el producto a través de Facebook
¿qué BANCO
tiene esta vivienda?
Rellena GRATIS el formulario para recibir información sobre el inmueble.
tiene esta vivienda?
Rellena GRATIS el formulario para recibir información sobre el inmueble.

