17 Abr
Vivienda muy bien distribuida ubicada en el municipio de Malpartida de Plasencia, provincia de Cáceres. Está muy bien ubicada y con buenos accesos.
Es una vivienda con un alto potencial, donde podrás vivir cómodamente y disfrutar de casa en tus momentos de descanso.
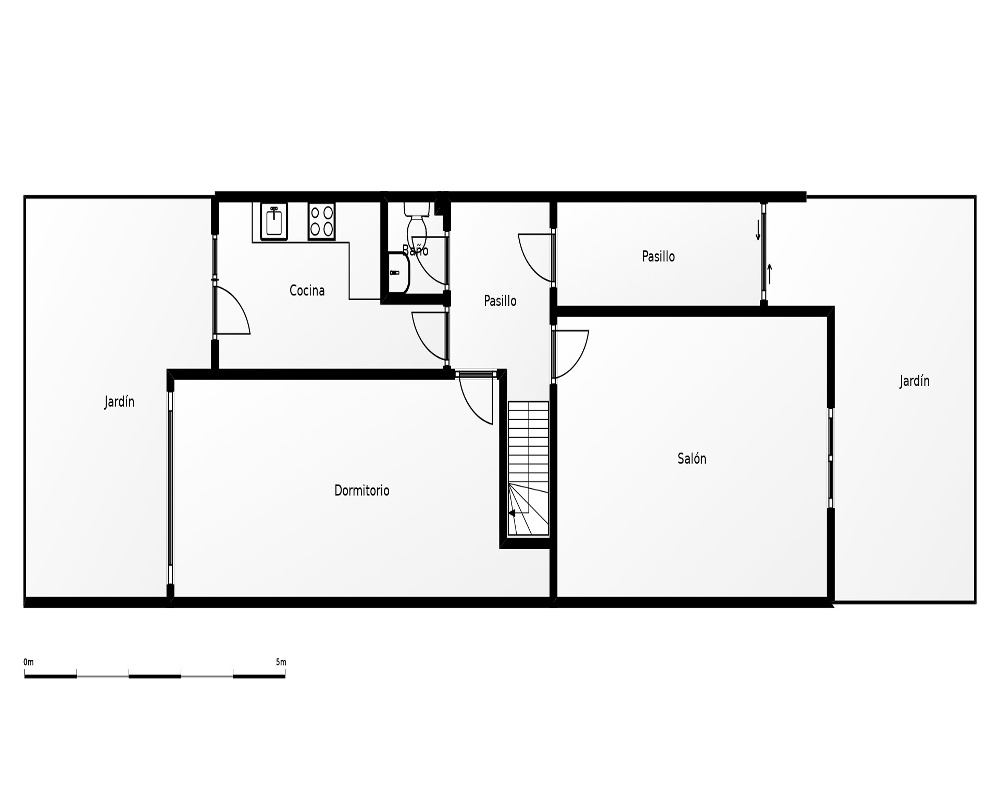
Consta de dos plantas, con todas las estancias para cubrir tus necesidades. Amplio salón, cocina independiente amueblada, dormitorios espaciosos, todos con ventana, facilitando la iluminación y la ventilación cruzada. Baños completos y un amplio patio donde poder disfrutar al aire libre desde la tranquilidad de tu hogar.
Además, también dispone de garaje privado en la parte inferior con salida directa a la calle.
Se encuentra en un entorno urbano, de viviendas con un grado de consolidación alto.
Es una zona tranquila rodeada de zonas verdes.
No lo pienses más y no pierdas esta oportunidad de poder adquirir esta propiedad para construir el hogar con el que siempre has soñado, como segunda residencia o por qué no como inversión en una ciudad en constante crecimiento y con el que siempre tendrás rentabilidad.
Almendro
NO COBRAMOS COMISIÓN DE INTERMEDIACIÓN AL COMPRADORVivienda muy bien distribuida ubicada en el municipio de Malpartida de Plasencia, provincia de Cáceres. Está muy bien ubicada y con buenos accesos.
Es una vivienda con un alto potencial, donde podrás vivir cómodamente y disfrutar de casa en tus momentos de descanso.
Consta de dos plantas, con todas las estancias para cubrir tus necesidades. Amplio salón, cocina independiente amueblada, dormitorios espaciosos, todos con ventana, facilitando la iluminación y la ventilación cruzada. Baños completos y un amplio patio donde poder disfrutar al aire libre desde la tranquilidad de tu hogar.
Además, también dispone de garaje privado en la parte inferior con salida directa a la calle.
Se encuentra en un entorno urbano, de viviendas con un grado de consolidación alto.
Es una zona tranquila rodeada de zonas verdes.
No lo pienses más y no pierdas esta oportunidad de poder adquirir esta propiedad para construir el hogar con el que siempre has soñado, como segunda residencia o por qué no como inversión en una ciudad en constante crecimiento y con el que siempre tendrás rentabilidad.
- Superficie 109 m²
- Habitaciones 4
- Baños 1
Escribe tu comentario sobre el producto a través de Facebook
¿qué BANCO
tiene esta vivienda?
Rellena GRATIS el formulario para recibir información sobre el inmueble.
tiene esta vivienda?
Rellena GRATIS el formulario para recibir información sobre el inmueble.

