26 Abr
Vivienda en C/ Girona - Terrassa -
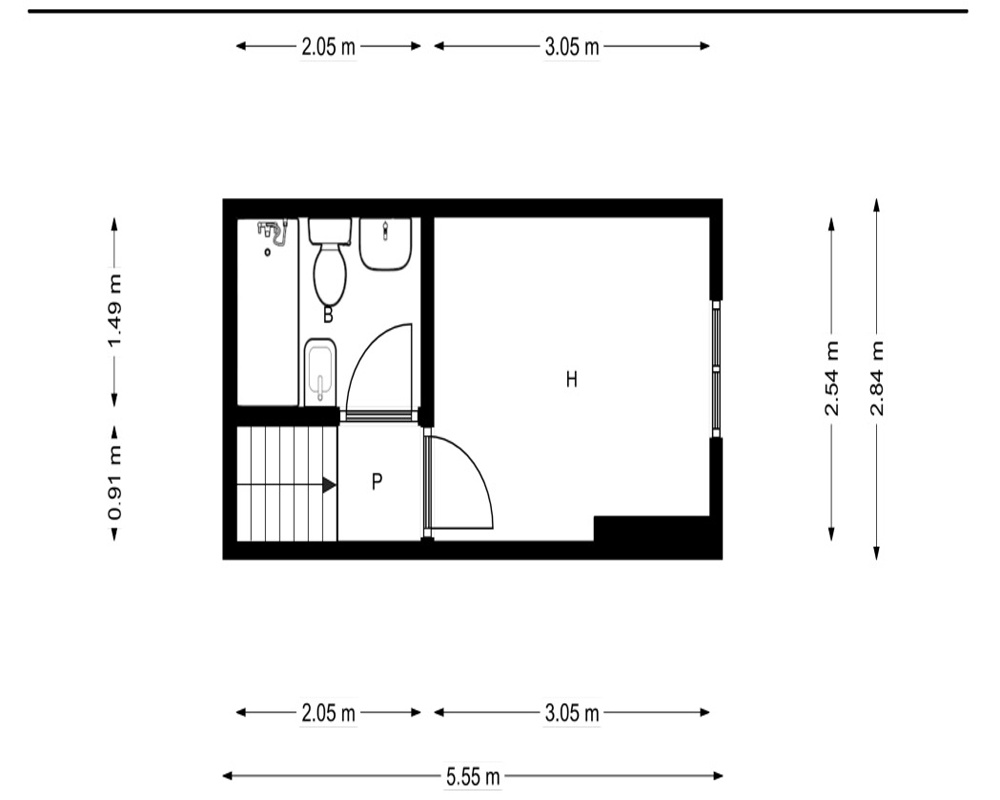
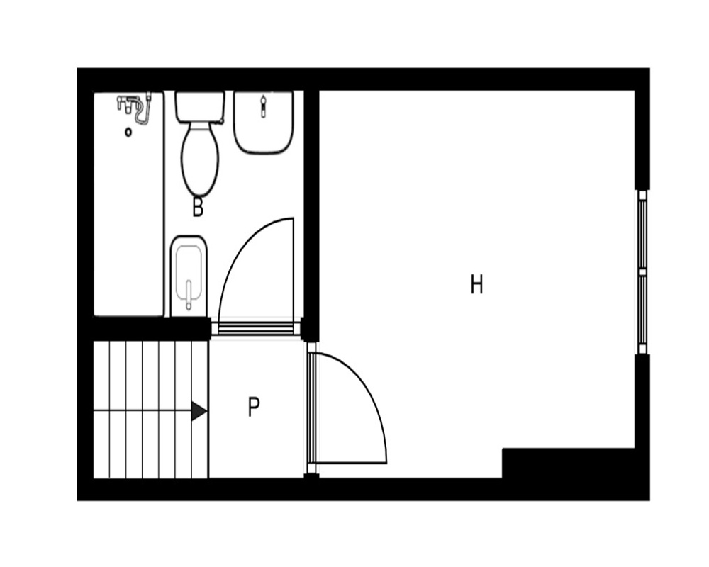
VIVIENDA ALQUILADA, IDEAL PARA INVERSORES. Dúplex de 55 m² de 2 dormitorios situado en la localidad de Terrassa, provincia de Barcelona. La vivienda está bien comunicada en todos los aspectos, a 10 minutos de la estación de tren Terrassa Nacions Unides, con paradas de autobús con las líneas M8A y 7 y por carretera, a través de los accesos viarios B-40 y B-122. La zona dispone de equipamiento variado, centro de salud, centro comercial, polideportivo, supermercados, restaurantes, farmacia, gasolinera, etc. Construido en 2008 este dúplex tiene una superficie de 55 m² y se distribuye en salón-comedor con cocina abierta, amueblada con armarios altos y bajos y equipada con horno, vitrocerámica y campana extractora, 2 dormitorios, 2 baños y terraza. Información sobre la propiedad en alquiler: La vivienda se encuentra actualmente alquilada a precio de mercado, con inquilinos solventes que cuentan con empleo fijo y nómina, abonando la renta de manera puntual y regular. Detalles del contrato: Renta mensual actual: 863,95€ Importante: Dado que el estado ocupacional de la propiedad, no es posible realizar visitas. Para más información, no dudes en consultarnos.- Superficie 55.47 m²
- Habitaciones 2
- Baños 2
Escribe tu comentario sobre el producto a través de Facebook
¿qué BANCO
tiene esta vivienda?
Rellena GRATIS el formulario para recibir información sobre el inmueble.
tiene esta vivienda?
Rellena GRATIS el formulario para recibir información sobre el inmueble.

