24 Abr
Excelente oportunidad para adquirir este local comercial ubicado en Barcelona. Dispone de buenos acceso y está bien comunicado.
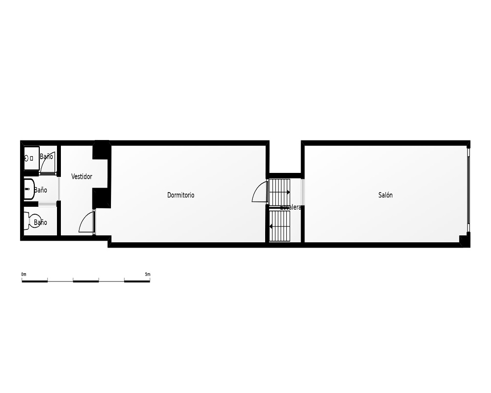
El local consta de tienda, trastienda, cocina, aseo y un altillo con dos habitaciones, un cuarto trastero y aseo.
Adquirir un local en esta zona de Barcelona permite beneficiarse de un entorno consolidado, con tránsito peatonal constante, tejido comercial activo y excelente conexión por transporte público. La proximidad a servicios, viviendas y oficinas favorece una demanda estable, tanto para actividad propia como para alquiler, ofreciendo buena visibilidad, potencial de revalorización y rentabilidad sostenida a medio y largo plazo.
Barcelona cuenta con una amplia red de servicios médicos públicos y privados, centros educativos en todos los niveles y una variada oferta comercial y cultural. Destaca por su calidad de vida, oportunidades laborales y dinamismo económico. Además, dispone de excelentes conexiones terrestres mediante tren de alta velocidad, red de cercanías, metro y autopistas que facilitan la movilidad metropolitana y nacional.
No dudes en ponerte en contacto con nosotros. Más información rellenando el formulario de contacto o por teléfono. Estaremos encantados de atenderte.
Sant Ramon
NO COBRAMOS COMISIÓN DE INTERMEDIACIÓN AL COMPRADORExcelente oportunidad para adquirir este local comercial ubicado en Barcelona. Dispone de buenos acceso y está bien comunicado.
El local consta de tienda, trastienda, cocina, aseo y un altillo con dos habitaciones, un cuarto trastero y aseo.
Adquirir un local en esta zona de Barcelona permite beneficiarse de un entorno consolidado, con tránsito peatonal constante, tejido comercial activo y excelente conexión por transporte público. La proximidad a servicios, viviendas y oficinas favorece una demanda estable, tanto para actividad propia como para alquiler, ofreciendo buena visibilidad, potencial de revalorización y rentabilidad sostenida a medio y largo plazo.
Barcelona cuenta con una amplia red de servicios médicos públicos y privados, centros educativos en todos los niveles y una variada oferta comercial y cultural. Destaca por su calidad de vida, oportunidades laborales y dinamismo económico. Además, dispone de excelentes conexiones terrestres mediante tren de alta velocidad, red de cercanías, metro y autopistas que facilitan la movilidad metropolitana y nacional.
No dudes en ponerte en contacto con nosotros. Más información rellenando el formulario de contacto o por teléfono. Estaremos encantados de atenderte.
- Superficie 106 m²
- Baños 1
Escribe tu comentario sobre el producto a través de Facebook
¿qué BANCO
tiene esta vivienda?
Rellena GRATIS el formulario para recibir información sobre el inmueble.
tiene esta vivienda?
Rellena GRATIS el formulario para recibir información sobre el inmueble.

