Favorito

Piso en venta en Terrassa

52.02 hab1 baño2115 €/m²

Ref: 925318

Calle Jerez

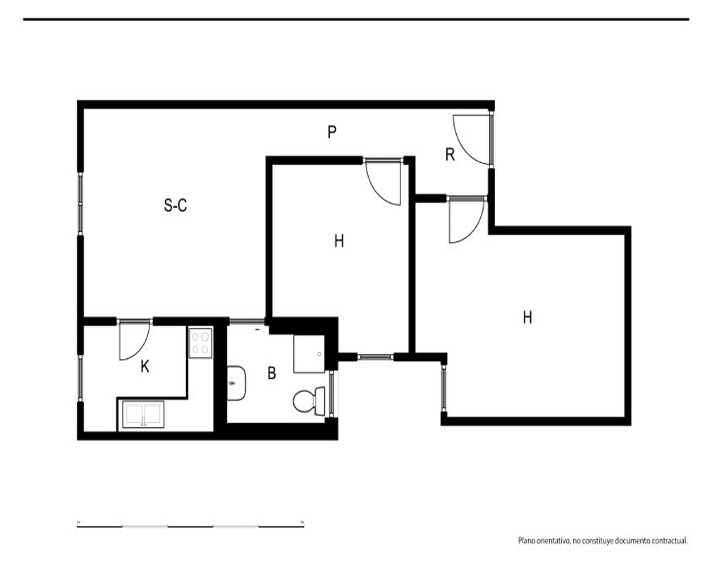
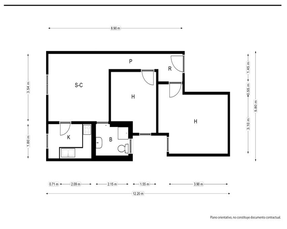
Piso de 52 m² con 2 habitaciones ubicado en la calle Jerez, Terrassa (Barcelona).

  • Superficie 52.0 m²
  • Habitaciones 2
  • Baños 1

    110.000€

    Terrassa, Barcelona

    Terrassa

    26 Abr

    Piso en C/ Jerez - Terrassa - Barcelona

    VIVIENDA ALQUILADA, IDEAL PARA INVERSORES. Piso en Terrasa, Barcelona. El inmueble, de 52 m² construidos y 42,84 m² útiles , está situado en un edificio residencial al este de la localidad, a pocos metros de la Plaza de Jaume Vicens Vives, y presenta la siguiente distribución: salón-comedor, cocina independiente amueblada equipada con vitrocerámica y campana extractora, 2 dormitorios y 1 baño. Esta vivienda en alquiler se ubica a unos metros de la Estación de tren de Terrasa, y a 8 minutos del Hospital. La zona cuenta con todo tipo de servicios y comercios en los alrededores, entre ellos, restaurantes, cafeterías, supermercados, farmacias, centros deportivos, o centros comerciales, el más cercano a 10 minutos a pie. Dispone de varias paradas de autobús próximas a la localización de la vivienda (líneas 2 y 3), y ofrece buen acceso a carreteras como la B-40 o la nacional N-150, a 6 y 8 minutos respectivamente. Información sobre la propiedad en alquiler: La vivienda se encuentra actualmente alquilada a precio de mercado, con inquilinos solventes que cuentan con empleo fijo y nómina, abonando la renta de manera puntual y regular. Detalles del contrato: Renta mensual actual: 675,83€. Importante: Dado que la propiedad está ocupada, no es posible realizar visitas en este momento. Para más información, no dudes en consultarnos.

    • Superficie 52.0 m²
    • Habitaciones 2
    • Baños 1

      Escribe tu comentario sobre el producto a través de Facebook

      ¿qué BANCO
      tiene esta vivienda?
      Que banco tiene esta vivienda? Rellena GRATIS el formulario para recibir información sobre el inmueble.

      Contacta con DonComparador
      Copyright DonComparador

      © DonComparador 2012 - 2026