Favorito
Piso de 88.95 m² en Sant Pere de Ribes
88.95 m²4 hab2 baños1979 €/m²
Ref: 921061
Calle Miguel Ángel
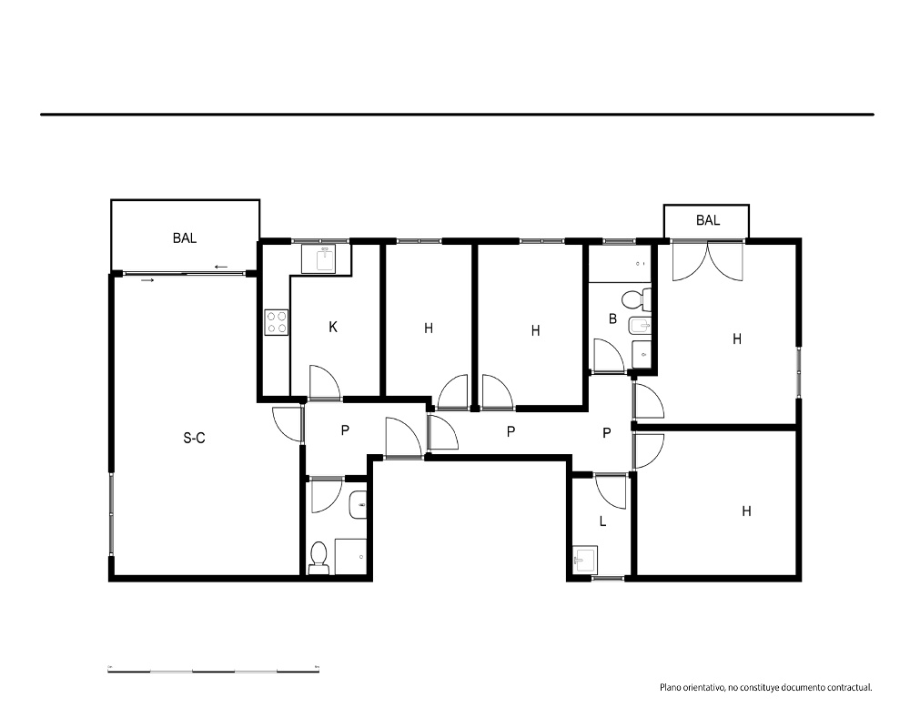
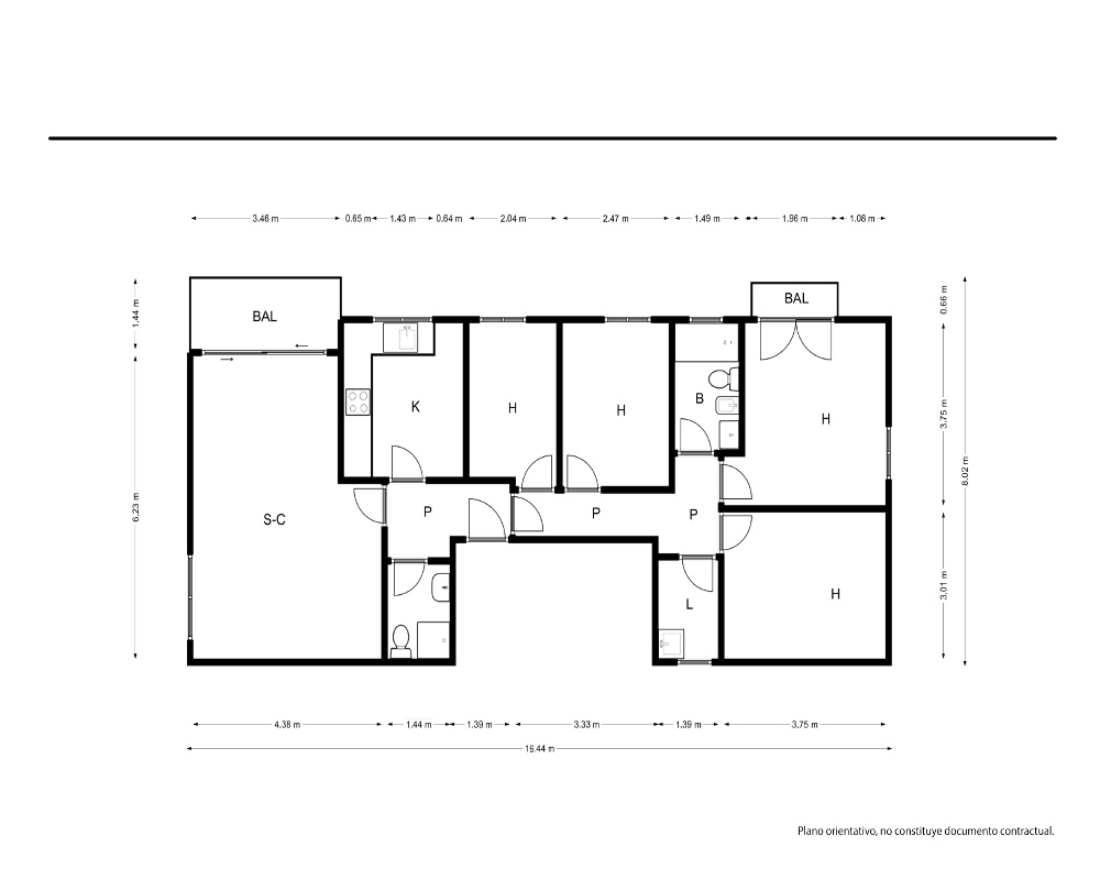
Piso de 89 m² con 4 habitaciones y 2 baños ubicado en la calle Miguel Ángel, Sant Pere de Ribes (Barcelona).
- Superficie 88.95 m²
- Habitaciones 4
- Baños 2
176.000€
Sant Pere de Ribes, Barcelona
24 May
Piso en C/ Miguel Ángel - Sant Pere de Ribes - Barcelona
VIVIENDA ALQUILADA, IDEAL PARA INVERSORES. Piso de 4 dormitorios en Sant Pere de Ribes, Barcelona. Situado en un área residencial con todos los servicios, esta luminosa vivienda de segunda mano y 119 m², ofrece muy buena conexión tanto por transporte público (paradas de autobús línea e-16), como privado y fácil acceso las carreteras C-246ª, C-15 y C-31. Su cercanía a colegios, organismos públicos, parques, centros deportivos, supermercados, cafeterías, centro de salud, farmacias y la playa de San Cristóbal y el puerto de Vilanova i la Geltú a 10 minutos, la convierten en una propuesta inteligente a un precio accesible. La vivienda se encuentra en la segunda planta de un edificio construido en 1990. Tiene una superficie de 119 m² construidos, siendo la útil de 89 m² y se distribuye en salón-comedor, cocina, 4 dormitorios y 2 baños amueblados. La cocina está equipada con placa vitrocerámica, horno y extractor de humos. Además, esta vivienda cuenta con calefacción, aire acondicionad y pavimento de tarima. Información sobre la propiedad en alquiler: La vivienda se encuentra actualmente alquilada a precio de mercado, con inquilinos solventes que cuentan con empleo fijo y nómina, abonando la renta de manera puntual y regular. Detalles del contrato: Renta mensual actual: 836,48 €. Importante: Dado el estado ocupacional de esta propiedad, no es posible realizar visitas. Para más información, no dudes en consultarnos.- Superficie 88.95 m²
- Habitaciones 4
- Baños 2
Escribe tu comentario sobre el producto a través de Facebook
¿qué BANCO
tiene esta vivienda?
Rellena GRATIS el formulario para recibir información sobre el inmueble.
tiene esta vivienda?
Rellena GRATIS el formulario para recibir información sobre el inmueble.

