26 Abr
Vivienda en C/ Onyar - Barcelona -
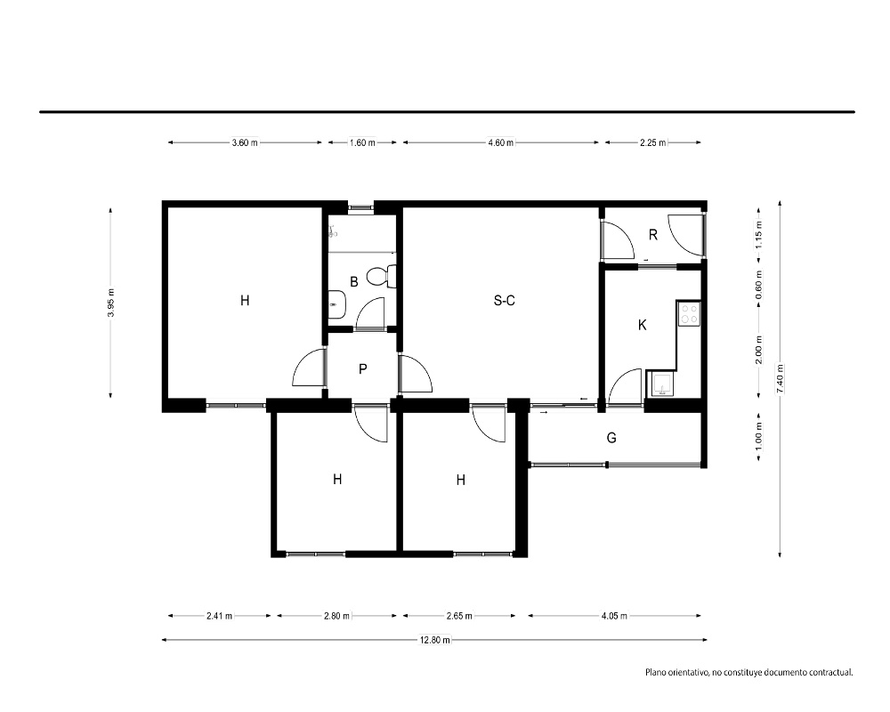
VIVIENDA ALQUILADA, IDEAL PARA INVERSORES. Piso de 3 dormitorios en la ciudad de Barcelona. La vivienda se encuentra en la primera planta de un edificio construido en 1969. Tiene una superficie de 66 m² construidos (52,47 m² útiles) distribuidos en salón-comedor, 3 dormitorios, cocina y 1 baño amueblado. La cocina está equipada con muebles altos y bajos, placa vitrocerámica, horno y campana extractora de humos. Situado en el barrio La Marina de Port con todos los servicios, esta luminosa vivienda de segunda mano y 66 m², ofrece muy buena conexión tanto por transporte público (autobús línea 13, 125, V5, metro línea L10S, estación de tren a 10 minutos), como privado y fácil acceso a las carreteras B-10 y N-340. Su cercanía a colegios, organismos públicos, parques, centros deportivos, supermercados, cafeterías, centro de salud, farmacias, el puerto y las playas a 10 minutos en coche, la convierten en una propuesta inteligente a un precio accesible. En una opción para construir un hogar y entrar a vivir de inmediato. Información sobre la propiedad en alquiler: La vivienda se encuentra actualmente alquilada a precio de mercado, con inquilinos solventes que cuentan con empleo fijo y nómina, abonando la renta de manera puntual y regular. Detalles del contrato: Renta mensual actual: 1025.90€ Importante: Dado que la propiedad está ocupada, no es posible realizar visitas en este momento. Para más información, no dudes en consultarnos.- Superficie 61.5 m²
- Habitaciones 3
- Baños 1
Escribe tu comentario sobre el producto a través de Facebook
¿qué BANCO
tiene esta vivienda?
Rellena GRATIS el formulario para recibir información sobre el inmueble.
tiene esta vivienda?
Rellena GRATIS el formulario para recibir información sobre el inmueble.

