19 Abr
Piso en C/ Canigó
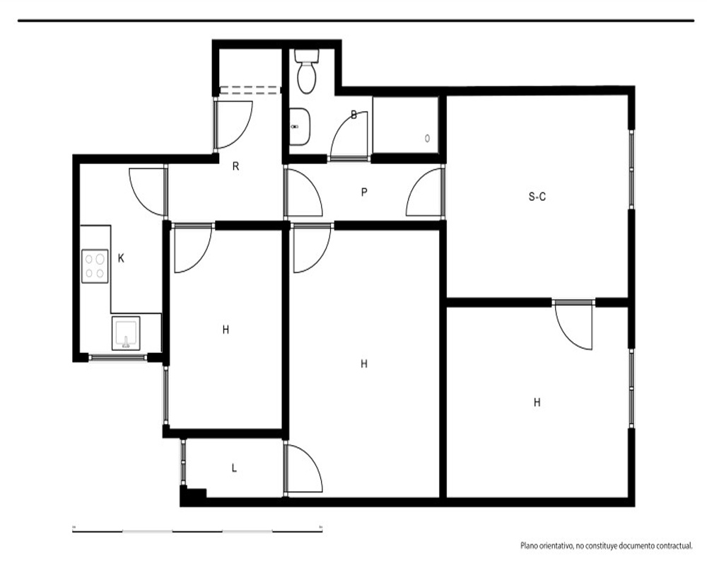
VIVIENDA ALQUILADA, IDEAL PARA INVERSORES. Vivienda de 58 m² localizada en Badalona, Barcelona. Piso de segunda mano que pertenece a un edificio residencial construido en 1959, ubicado en la primera tercera planta con la siguiente distribución: salón-comedor, cocina amueblada independiente, equipada con placa vitrocerámica, horno y campana extractora de humos, 2 dormitorios y 1 baño. Además, dispone de radiadores metálicos para la calefacción en la mayoría de las dependencias. Siempre es una inversión rentable. El inmueble está ubicado en zona residencial consolidada, a menos de 2 kilómetros de la playa más cercana, donde en las inmediaciones se hallan servicios como supermercados, cafeterías, centros educativos, farmacia, oficinas de banco, plazas y centros deportivos entre otros. Bien comunicado mediante para de metro en Pep Ventura, a 4 minutos andando, y también por transporte privado a través de C-31 a 5 minutos aproximadamente. Información sobre la propiedad en alquiler: La vivienda se encuentra actualmente alquilada a precio de mercado, con inquilinos solventes que cuentan con empleo fijo y nómina, abonando la renta de manera puntual y regular. Detalles del contrato: Renta mensual actual: 876 € Importante: Dado que la propiedad está ocupada, no es posible realizar visitas en este momento. Para más información, no dudes en consultarnos.- Superficie 58.0 m²
- Habitaciones 2
- Baños 1
Escribe tu comentario sobre el producto a través de Facebook
¿qué BANCO
tiene esta vivienda?
Rellena GRATIS el formulario para recibir información sobre el inmueble.
tiene esta vivienda?
Rellena GRATIS el formulario para recibir información sobre el inmueble.

