24 Abr
NO COBRAMOS COMISIÓN DE INTERMEDIACIÓN AL COMPRADOR
Excelente oportunidad de adquirir en propiedad esta vivienda con piscina ubicada en la localidad de Santa Eulàlia de Ronçana, provincia de Barcelona.
Es ideal para quienes buscan un hogar confortable en un entorno natural y acogedor.
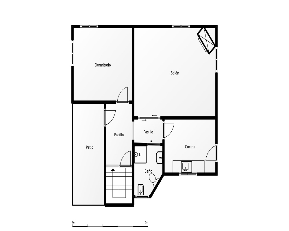
Esta espaciosa vivienda cuenta con un luminoso salón-comedor con chimenea, perfecto para disfrutar de momentos en familia y reuniones con amigos. Con materiales de alta calidad, una amplia cocina independiente amueblada, cuatro amplias habitaciones y baños completos. Además dispone de amplia terraza y garaje independiente en la planta baja de la vivienda con entrada y salida directa a la calle, ofreciendo una experiencia de vida inmejorable.
La vivienda precisa algo de reforma en algunas de sus estancias, ofreciendo un lienzo en blanco para crear la vivienda de tus sueños. Su diseño espacioso y su distribución funcional ofrecen un sinfín de posibilidades para personalizarlo según tus gustos y necesidades
Situado en una zona residencial tranquila, disfruta de una ubicación estratégica. Además, la excelente conexión con las principales vías de acceso te permitirá llegar rápidamente a otras áreas de interés.
El entorno es principalmente residencial.
Esta es tu oportunidad de convertir este piso a reformar en tu hogar ideal o en una inversión rentable en el mercado inmobiliario.
Excelente oportunidad de adquirir en propiedad esta vivienda con piscina ubicada en la localidad de Santa Eulàlia de Ronçana, provincia de Barcelona.
Es ideal para quienes buscan un hogar confortable en un entorno natural y acogedor.
Esta espaciosa vivienda cuenta con un luminoso salón-comedor con chimenea, perfecto para disfrutar de momentos en familia y reuniones con amigos. Con materiales de alta calidad, una amplia cocina independiente amueblada, cuatro amplias habitaciones y baños completos. Además dispone de amplia terraza y garaje independiente en la planta baja de la vivienda con entrada y salida directa a la calle, ofreciendo una experiencia de vida inmejorable.
La vivienda precisa algo de reforma en algunas de sus estancias, ofreciendo un lienzo en blanco para crear la vivienda de tus sueños. Su diseño espacioso y su distribución funcional ofrecen un sinfín de posibilidades para personalizarlo según tus gustos y necesidades
Situado en una zona residencial tranquila, disfruta de una ubicación estratégica. Además, la excelente conexión con las principales vías de acceso te permitirá llegar rápidamente a otras áreas de interés.
El entorno es principalmente residencial.
Esta es tu oportunidad de convertir este piso a reformar en tu hogar ideal o en una inversión rentable en el mercado inmobiliario.
- Superficie 256 m²
- Habitaciones True
- Baños 2
- Anexos True
Escribe tu comentario sobre el producto a través de Facebook
¿qué BANCO
tiene esta vivienda?
Rellena GRATIS el formulario para recibir información sobre el inmueble.
tiene esta vivienda?
Rellena GRATIS el formulario para recibir información sobre el inmueble.

