19 Abr
Vivienda adosada en construcción en Fiñana
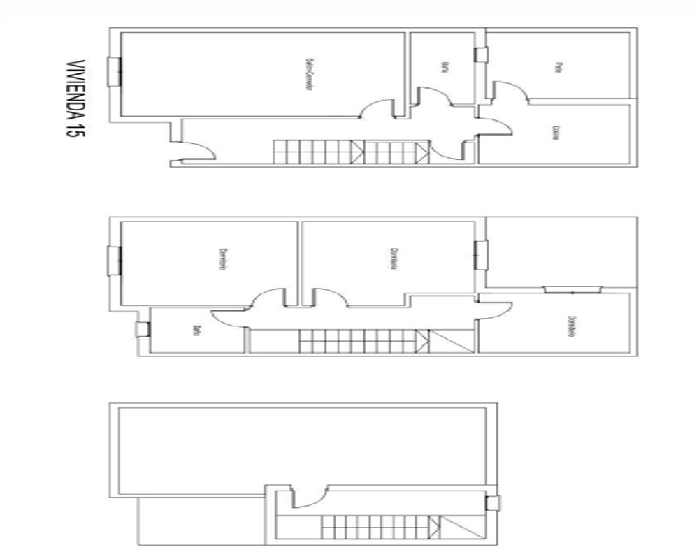
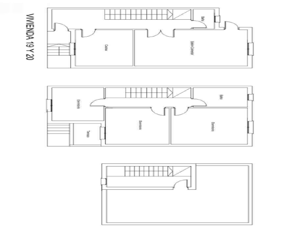
Promoción de 3 viviendas unifamiliares en construcción detenida, con una superficie de 498 m², ubicada en la localidad de Fiñana, provincia de Almería. Fiñana es un municipio de la provincia de Almería, situado en la comarca de los Filabres-Tabernas, en el límite con la provincia de Granada. Está situada a unos 70 km de la capital, Almería y está conectada a esta mediante la A-92 y la AL-6401. La zona dispone de equipamiento variado, centro de salud, farmacia, supermercado, restaurantes, oficina de correos y pequeño comercio. Se trata de un lote de 3 viviendas unifamiliares adosadas/pareadas en construcción detenida, con una superficie total de 498 m² y que disponen de garaje comunitario y piscina. Podrá conocer las posibilidades reales del activo y valorar sus posibilidades de inversión. Empiece ahora mismo pidiendo más información. Un responsable cercano a usted le atenderá personalmente.- Superficie 152.44 m²
Escribe tu comentario sobre el producto a través de Facebook
¿qué BANCO
tiene esta vivienda?
Rellena GRATIS el formulario para recibir información sobre el inmueble.
tiene esta vivienda?
Rellena GRATIS el formulario para recibir información sobre el inmueble.

